Prodej - pozemek pro bydlení, 1 271 m²
Prodej pozemku 1.271 m²
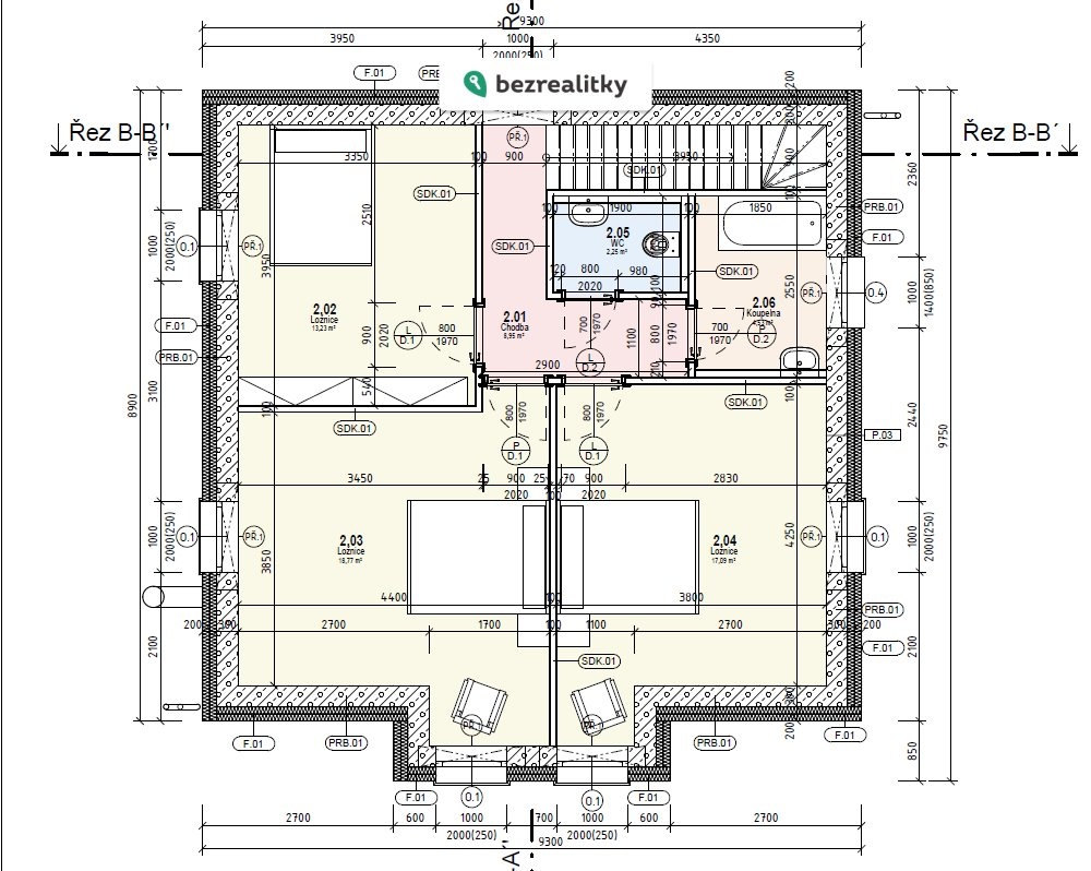
Prodej stavebního pozemku 1271 m², s možností využít projekt RD, projektu vjezdu a vydaným stavebním povolením – Podkopná Lhota u Zlína. Pozemek je připraven k okamžité výstavbě rodinného domu. Inženýrské sítě- voda, elektřina– jsou na hranici pozemku. Součástí prodeje je hotový projekt zděného patrového rodinného domu o dispozici 5+kk a podlahové ploše 131,4 m², čtvercového půdorysu s valbovou střechou. Zastavěná plocha je 85,3m2 , oběstavený prostor 610m3 Cílem projektu byl návrh domu o co nejmenší ploše základové desky a zároveň co největší podlahové ploše. Tím stavebník ušetří nemalé peníze. Více o projektu rád poskytnu po prvním kontaktu. Dále je vyprojektovaný odsouhlasený vjezd z hlavní cesty. Díky platnému stavebnímu povolení, můžete začít stavět bez zbytečného čekání a vyřizování. Projekt lze samozřejmě změnit podle svých představ dle platné regule obce, nebo jej taky vůbec nepoužít. Stavební pozemek o rozloze 1271 m², který je ideálně rovinatý, orientovaný na jih a nachází se v klidné rekreační oblasti s krásnou okolní přírodou. Okolí nabízí lesy, cyklostezky, pěší a dostatek prostoru pro odpočinek. Zároveň výbornou dostupnost do Slušovic, Zlína. Příme autobusové spojení se Zlínem. Ideální volba pro klidné rodinné bydlení s výhodami města na dosah. Pro více informací či sjednání prohlídky mě neváhejte kontaktovat, jako první kontakt bych poprosil emailem. Rozumná domluva samozřejmostí. Tato nemovitost je určena výhradně přímým zájemcům o koupi. Na inzerát můžete také reagovat přímo na webu Bezrealitky.


