Prodej - dům/vila, 195 m²
Prodej moderního domu na klíč 4+kk, 194 m², na pozemku 1 000 m², v obci Podbořany – Pšov
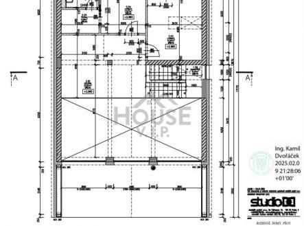
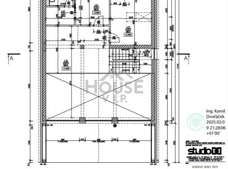
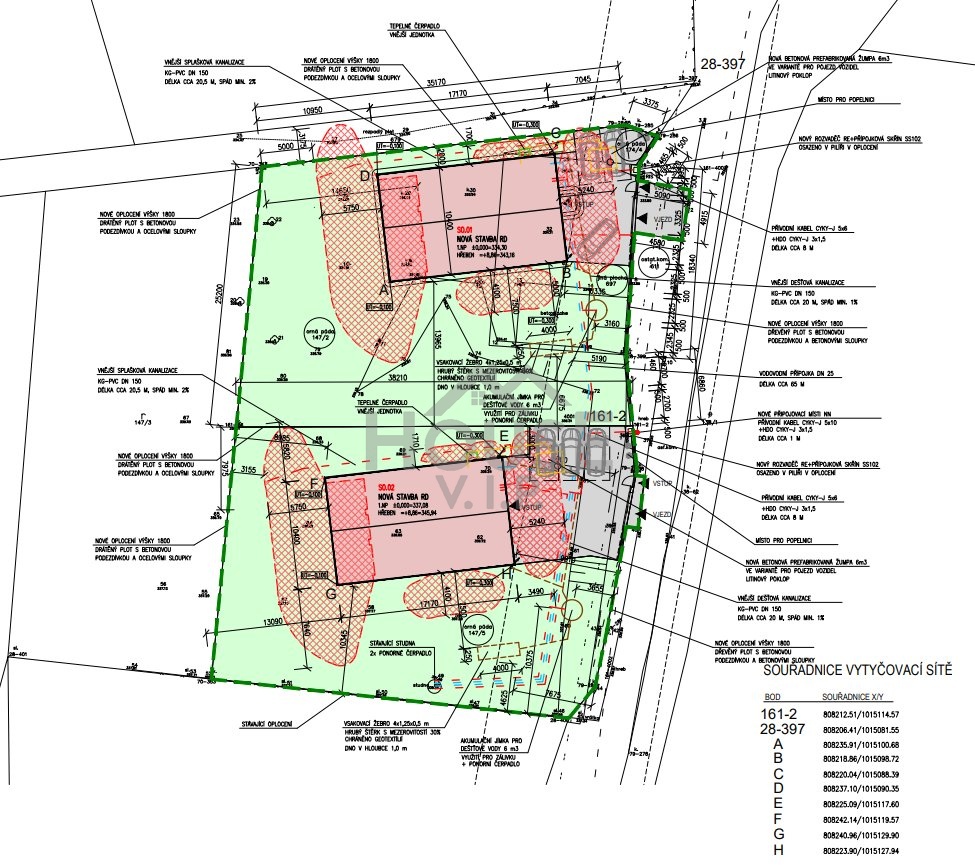
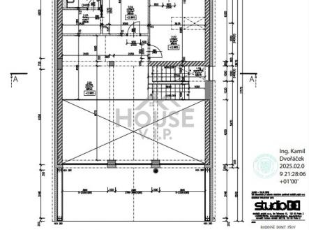
Nabízíme k prodeji moderní rodinný dům na klíč 4+kk, o užitné ploše 194 m², který bude realizován na slunném pozemku o výměře 1 000 m², v klidné části obce Podbořany s krásným výhledem do zeleně. Projekt je připravován ve vysokém standardu přímo vlastníkem pozemku, s důrazem na kvalitu použitých materiálů, energetickou úspornost a komfortní bydlení. Schválení stavebního povolení očekáváme začátkem roku 2026. Výstavba a cena: Cena zahrnuje pozemek a realizaci hrubé stavby (základy, nosné konstrukce, střecha, zateplení, okna, dveře, schodiště). Za příplatek je možné dokončit dům přesně dle vizualizace a požadavků kupujícího. Na prodej je také sousední pozemek včetně realizace o stejné výměře 1 000 m² (viz koordinační výkres). Je také možné koupit pozemek ihned s hotovým projektem a stavebním povolením za 2.49 mln. s možností samostatné realizace. Financování stavby je možné rozdělit na jednotlivé etapy, takže celou částku nemusíte platit najednou. Zastavěná plocha: 178,57 m². Podlahová plocha: 194,25 m². • 1. NP: 117,42 m² + terasa 35,79 m². • 2. NP: 76,83 m². Výška stavby: 8,86 m. Konstrukce: nosné stěny z dutinových keramických tvárnic. Strop nad 1. NP: železobetonový monolit (tl. 250 mm). Vytápění: tepelné čerpadlo + krbová vložka. Další technologie: fotovoltaika, klimatické zatížení řešeno v projektu. Přípojka vody: ze stávající studny. Kanalizace: domovní ČOV. Dispozice 1. NP (117,42 m²): Technická místnost (6,81 m²), WC (5,22 m²), spíž (7,54 m²), vstupní hala (13,63 m²), ložnice (12,37 m²), šatna (5,73 m²), druhá šatna (5,91 m²), obývací pokoj s kuchyňským koutem (60,21 m²) a terasa (35,79 m²). Dispozice 2. NP (76,83 m²): Schodiště (8,47 m²), galerie (23,82 m²), ložnice (14,92 m²), koupelna (5,65 m²), druhá ložnice (13,67 m²), šatna (4,09 m²) a koupelna (6,21 m²). Lokalita: Nemovitost se nachází v tiché části obce, pouhých 350 m od autobusové zastávky směr Žatec. Podbořany nabízejí plnou občanskou vybavenost, dobrou dostupnost do větších měst a krásné okolí ideální pro rodinné bydlení. Energetická náročnost: Budoucí PENB bude odpovídat hodnotám nízkoenergetického až pasivního domu třídy "A", což zaručuje nízké provozní náklady. Pro více informací o rodinném domě a možnostech individuálních úprav nás kontaktujte.


