Pronájem bytu, 1+kk, 31 m²
Zařízený byt 1+kk s garážovým stáním, 29 m2
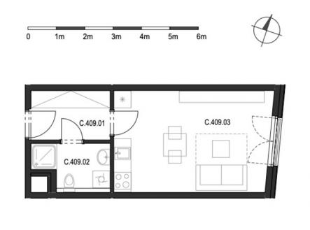
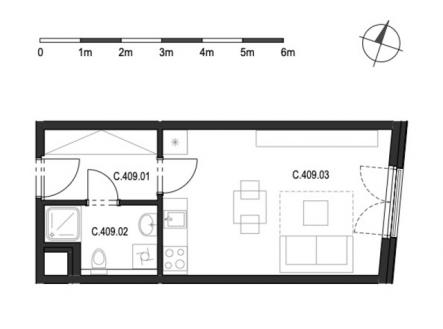
K dlouhodobému pronájmu nabízíme zařízený byt 1+kk (29 m2) se sklepní kójí (2 m2) v novém obytném komplexu PANORAMA PLZEŇ nedaleko centra Plzně na Jižním Předměstí, ulice Nemocniční. K bytu je možné si pronajmout garážové parkovací stání. Bytová jednotka je umístěna ve 4. nadzemním podlaží (z celkových 7) energeticky úsporné novostavby (třída B). Středová poloha bytu přispívá nejen k vyššímu tepelnému komfortu, zvláště v zimních měsících, ale také k úspoře nákladů na jeho vytápění. Byt je členěn na pokoj s kuchyňským koutem, předsíň a koupelnu s toaletou. Součástí vybavení je kuchyňská linka s vestavnou sklokeramickou varnou deskou, elektrickou troubou, digestoří a myčkou nádobí, dále samostatně stojící lednice s mrazákem, barový pult se dvěma židlemi, rozkládací pohovka, konferenční stolek, TV stolek, komoda, police, dvě šatní skříně, věšák, pračka a koupelnový nábytek. Neschází ani kompletní osvětlení celého bytu či zastínění oken vnitřními žaluziemi. Domácí videotelefon umístěný v předsíni umožňuje ovládání přístupů do budovy i sledování kamer. Vytápění i ohřev vody jsou ústřední, s individuálním měřením spotřeby pro každou jednotku. Pro televizní přenos je k dispozici společná televizní anténa, internet zajišťuje PilsFree. Ke společnému užívání je veřejnosti nepřístupná relaxační zóna s lavičkami v atriu domu, která slouží pouze obyvatelům tohoto komplexu. Jedná se o velmi komfortní bydlení v místě s veškerou občanskou vybaveností, velmi dobrou dostupností MHD a rychlým napojením na dálnici D5. Za vymezení architektonicky čisté formy zástavby a zeleného klidového atria bez zaparkovaných automobilů získal obytný komplex PANORAMA PLZEŇ nominaci na titul Stavba roku Plzeňského kraje a zařadil se tak mezi nejvýznamnější stavby západočeské metropole. Cenové podmínky pronájmu: • Nájemné za byt 12.600 Kč/měsíc • Nájemné za garážové stání 800 Kč/měsíc • Zúčtovatelné zálohy na energie a služby vyjma elektřiny 2.200 Kč/1 osoba/měsíc 2.600 Kč/2 osoby/měsíc • Elektřinu (cca 1.000 Kč/měsíc) si nájemce převádí na sebe • Jistota (vratná kauce) 25.000 Kč • Provize RK za byt 15.300 Kč • Provize RK za garážové stání 1.000 Kč Byt je ihned k nastěhování. Pro bližší informace či domluvení prohlídky volejte na uvedený mobilní telefon.
Idea Reality s.r.o.


