Pronájem - komerční objekt, sklad, 295 m²
Pronájem velkokapacitního skladu 295 m2, Plzeň-Východní Předměstí
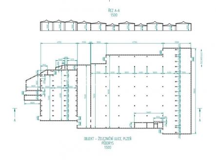
K pronájmu nabízíme prostor pro výrobu a skladování v Železniční ulici. Prostory jsou ideální pro podnikání v oblasti výroby, dílny či skladování. Hala umožňuje další prostory k pronájmu. K dispozici je sociální zázemí, které je nově vybudované. Přístup k hale 24/7/365. Areál je střežený kamerovým systémem, HLS a je oplocený. Světlá výška je 5,9 m a výška vjezdu 4,9 m. Areál je dobře dostupný i pro nákladní auta, kamiony. Velkou výhodou je i lokalita, která je dobře dostupná a blízko centra. V případě zájmu nás neváhejte kontaktovat pro více informací nebo pro prohlídku prostoru. K dispozici jsou dva dieselové vysokozdvižné vozíky značky Linde a vysokorychlostní internet.


