Pronájem - komerční objekt, sklad, 2 521 m²
Pronájem velkokapacitního skladu 2 521 m2, Plzeň-Východní Předměstí
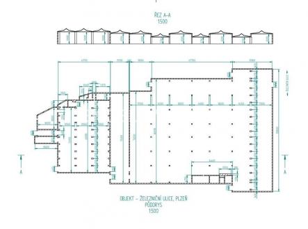
K dlouhodobému pronájmu nabízíme skladové haly v Železniční ulici o velikosti 2 521 m2. Unikátní prostory s možností pronájmu až 14 528 m2. Přístup k halám 24/7/365. Areál je střežený kamerovým systémem, HLS a je oplocený. Nově vybudované sociální zařízení. Světlá výška je 10 m a výška vjezdu 4,9 m. Areál je dobře dostupný i pro nákladní auta. Velkou výhodou je i lokalita, která je dobře dostupná a blízko centra. Využijte jedinečnou příležitost pronájmu skladových prostor v blízkosti centra. V případě zájmu nás neváhejte kontaktovat pro více informací nebo pro prohlídku prostoru. K dispozici jsou dva dieselové vysokozdvižné vozíky značky Linde a vysokorychlostní internet.


