Pronájem - komerční objekt, sklad, 14 528 m²
Pronájem velkokapacitního skladu 14 528 m2, Plzeň-Východní Předměstí
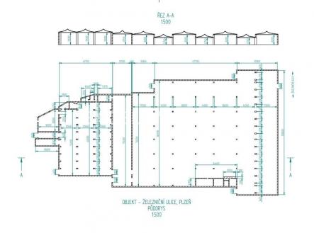
K dlouhodobému pronájmu nabízíme skladové haly v Železniční ulici. Unikátní prostory s možností pronájmu až 14 528 m2. Hala je rozdělena na různé nevytápěné velikostní prostory. K dispozici je kancelářské zázemí a také sociální zázemí, které je nově vybudované. Přístup k halám 24/7/365. Areál je střežený kamerovým systémem, bezpečnostní agenturou HLS a je oplocený. Světlá výška je 10 m a výška vjezdu 4,9 m. Areál je dobře dostupný i pro nákladní auta a kamiony. Skladový prostor má několik vjezdových vrat např. s výškou 4,9 m a šířkou 4,3 m. Do haly vede železniční vlečka. Velkou výhodou je i lokalita, která je dobře dostupná a blízko centra. Využijte jedinečnou příležitost pronájmu skladových prostor v blízkosti centra. V případě zájmu nás neváhejte kontaktovat pro více informací nebo pro prohlídku. K dispozici jsou dva dieselové vysokozdvižné vozíky značky Linde a vysokorychlostní internet.


