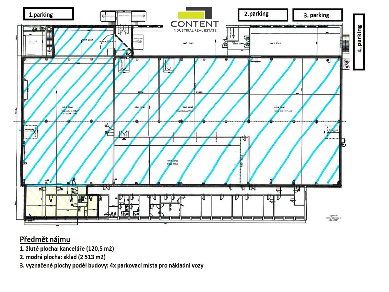
Pronájem - skladovací prostor, 2 513 m²
Pronájem skladu nebo výrobních prostor 2513 m², Plzeň - Doubravka
Pronájem skladu, výrobních prostor 2513 m² Plzeň - Doubravka. V zastoupení majitele a bez provize nabízíme industriální prostory vhodné pro sklad nebo výrobu o velikosti 2513 m², umístěné v průmyslovém areálu, nedaleko dálnice D5, EXIT 67. - k dispozici od 12/2025 (budova 4), - nosnost podlahy 5 t/m², - výška stropu 5 m, - vjezdy v úrovni vozovky, vstup z rampy, - kancelářské a soc. zázemí celkem až 378 m², - parkování i manipulace i pro nákladní vozy, - zastávka MHD, vlakové nádraží v blízkosti, Cena k jednání: nájemné sklady: 110 Kč/m²/měsíc, nájemné kanceláře: 250 Kč/m²/měsíc + poplatky za údržbu areálu: 19 Kč/m², spotřeba energií dle vlastní spotřeby. Pro více informací nás kontaktujte, rádi Vám zajistíme prohlídku nemovitosti.


