Pronájem - skladovací prostor, 1 100 m²
Pronájem novostavby skladu, výrobních prostor 1.100 m², Plzeň 4
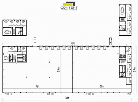
Pronájem skladu, výrobních prostor 1100 m² Plzeň 4- Jateční ulice. V zastoupení majitele a bez provize nabízíme skladové, výrobní nebo obchodní prostory o celkové výměře 4870 m² v nově vznikajícím areálu Nová Jateční vedle plně obsazeného retail parku Intercora. Areál se nachází vedle frekventované ulice Jateční a zároveň na budoucím východním obchvatu Plzně, což zajišťuje vynikající dopravní dostupnost i obchodní exponovanost. - 4870 m² dostupných (k dispozici 2Q/2027 – hala B), stavební povolení vydáno - lze dělit od cca 1100 m² - výška prostoru 10 m - kanceláře a sociální zázemí dle požadavků nájemce - parkovací místa přímo před jednotkou - bezprašné podlahy s minimální nosností 5 t/m² - přímý vjezd z úrovně terénu - hydraulické rampy - možnost dispozičních úprav podle potřeb klienta - MHD v docházkové vzdálenosti, v areálu plánované nabíjecí stanice - příjezd a parkování TIR bezproblémové, manipulační a parkovací plochy - BREAM Excellent - možnost instalace FVE - v areálu jsou k dispozici další skladové a obchodní jednotky o velikosti od 570 m² až po 4870 m² Cena za pronájem na dotaz. V případě zájmu nás kontaktujte, rádi zodpovíme Vaše dotazy. Fotografie jsou ilustrační.


