Pronájem - kanceláře, 289 m²
Pronájem kancelářských prostor v horním patře budovy, Prokopova, Plzeň
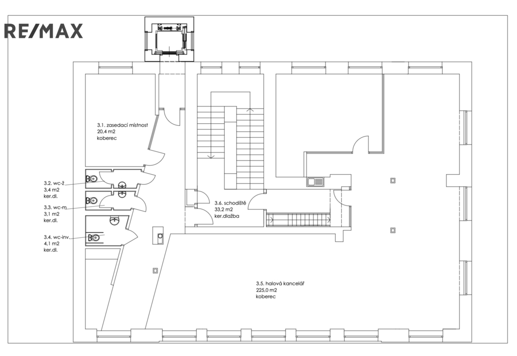
Nabízíme k dlouhodobému pronájmu kancelářské prostory s dostatkem parkovacích míst v centru města Plzně. Jedná se celé horní patro dvoupatrové kancelářské budovy o výměře 289 m2 se samostatným vchodem v centru města Plzně, v ulici Prokopova. Objekt je kompletně oplocen (elektrická vrata), vjezd na pozemek je chráněn závorou a bezpečnostním kamerovým systémem. Velkým benefitem je venkovní parkovací plocha, kde je k dispozici k hornímu patru 6 parkovacích míst. Dispozice horního patra: 2 uzavřené kanceláře, jednací místnost, otevřená kancelář (openspace) pro více osob, sociální zázemí (2x WC, úklidová místnost) kuchyňka. Všechny prostory jsou plně klimatizovány s dostatečným množstvím elektrických a datových zásuvek. K dispozici je vysokorychlostní připojení k internetu optickým kabelem. Každé patro budovy je vytápěno vlastním plynovým kotlem a má samostatná měřidla. Pronajímatel je plátcem DPH, k nájemnému bude DPH připočteno. Plyn a elektřina bude převedena na nájemce. Provize je ve výši jednoho nájemného + DPH. Objekt bude k dispozici dle dohody a případných úprav, aktuálně se prostory vyklízí. Prohlídka je po dohodě možná kdykoliv. Pro bližší informace či sjednání prohlídky využijte uvedené kontakty.


