Pronájem bytu, 2+1, 65 m²
Pronájem bytu 2+1 s chráněným parkovacím stáním ve vnitrobloku, 65m², Plzeň Černická ul.
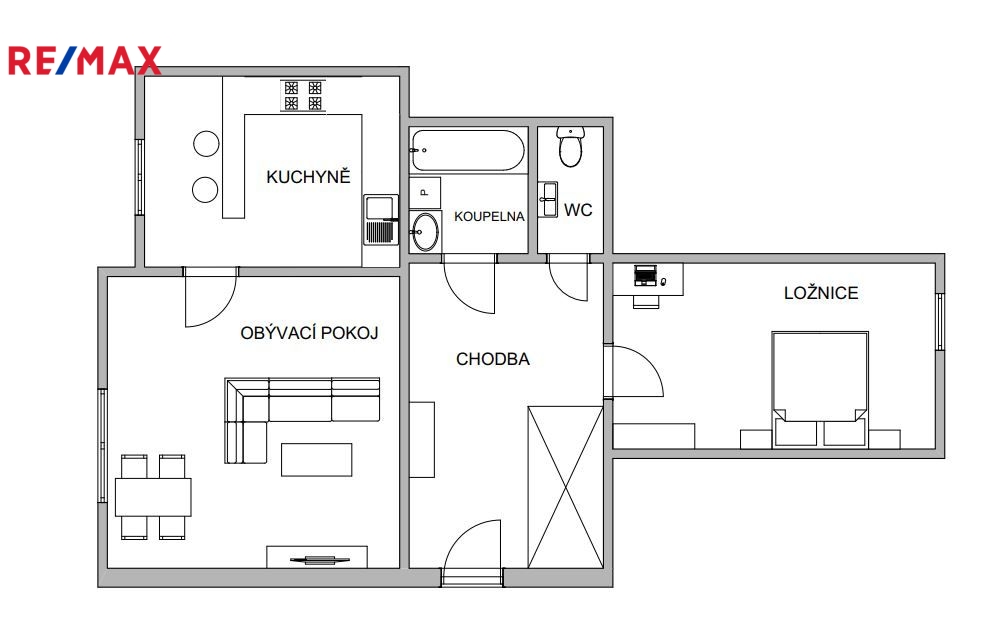
Exkluzívně nabízíme k pronájmu moderní byt o dispozici 2+1 o podlahové ploše 65 m² Byt je prostorný a nadstandardně zařízený. Kuchyň je vybavena vestavnými spotřebiči, v koupelně je k dispozici pračka. Byt je z části vytápěn podlahovým topením. Nachází se ve 3.patře cihlového domu v Černické ulici v Plzni. K bytu náleží jedno parkovací stání, které se nachází ve vnitrobloku. S ohledem k poloze blízko centra je chráněné parkovací stání velikou výhodou. Měsíční zálohová platba za vodu, topení a společné prostory je 3.874,- Kč plus záloha na el. energii. Kauce činí jeden měsíční nájem. Pokud máte zájem o prohlídku či více informací, kontaktujte makléřku nabídky. Nízké měsíční platby za energie a nízká provize RK. Velmi výhodná nabídka. Pronajímající si vyhrazuje právo vybrat nájemce na základě jím zvolených kritérií.

