Prodej bytu, 2+1, 70 m²
Prodej útulného bytu 2+1 ve vyhledávané lokalitě v Plzni.
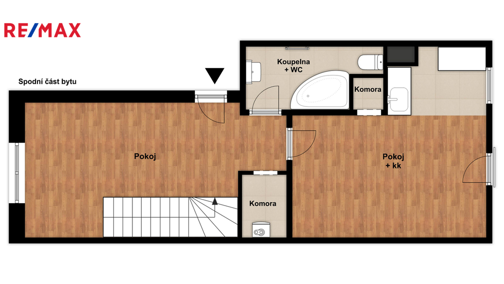
Hledáte atypický a útulný byt na skvělé adrese? Pak by tato nabídka mohla být právě pro vás... Nabízíme k prodeji byt 2 + 1 ( 3kk ) v ulici Ořechová, část obce Východní Předměstí, Plzeň. Tato nemovitost se nachází ve druhém patře cihlového domu bez výtahu, který je ve velmi dobrém stavu. Jedná se o přístavbu domu z roku 2005, kdy bylo vydáno kolaudační rozhodnutí. Mezonetový byt v osobním vlastnictví je prostorný a nabízí komfortní bydlení v atraktivní lokalitě. Celková plocha bytu, což je cca 70 m2, je vhodná pro pohodlný životní styl. Byt sestává z prostorné kuchyně, obývacího pokoje, koupelny s WC, spíže, komory a ložnice, která je umístěna v patře viz přiložené orientační plánky. K bytu přináleží sklep a možnost využívat společné prostory jako dílnu, kolárnu a část zahrady. Vytápění bytu i ohřev vody zajišťuje plynový kotel, umístěný v komoře. Fond oprav činí 699 Kč měsíčně. Dům je celkově výborně udržovaný V blízkosti domu se nachází kompletní síť obchodů a služeb, mladá rodina jistě ocení MŠ, ZŠ i několik dětských hřišť v okolí. Nedaleko se nachází i plavecký bazén a park Homolka. Zastávka MHD je 200 m od domu. Pokud máte zájem tento byt navštívit nebo by vás zajímaly další informace, neváhejte se obrátit na níže uvedené kontakty. Budu se těšit na prohlídce bytu :-) Prodávající si vyhrazuje právo vybrat kupujícího na základě jím zvolených kritérií.


