Prodej - dům/vila, 80 m²
Prodej rodinného domu se zahradou a garáží na Koterovské ulici, Plzeň Slovany
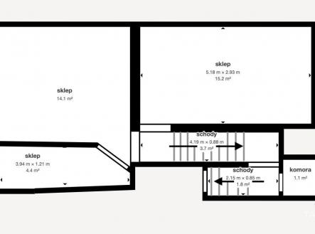
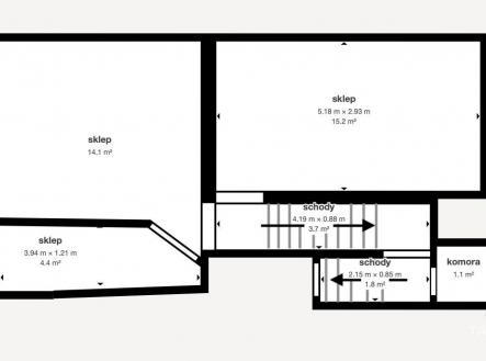
Představujeme k prodeji dům se zahradou a garáží v Plzni na Slovanech, konkrétně na adrese Koterovská 260/163. Podívejte se na samostatnou stránku domu, odkaz na stránku je ve videoprohlídce . Dům stojí na rohu Koterovské a Libušínské ulice a byl postaven v roce 1926. Má jedno patro, obytné podkroví a je kompletně podsklepený. V přízemí se nachází vstupní veranda, kuchyně, koupelna, WC a 2 pokoje. V podkroví je pak jeden pokoj s terasou a půda. Obálka domu i interiér jsou v původním stavu, vhodném k rekonstrukci. Technické informace: Dům je kompletně zděný, podlahy jsou z hoblovaných prken, v chodbách jsou cementové dlaždice, stropy jsou trámové, schodiště je betonové, stropy nad sklepy a chodbami v přízemí jsou taktéž betonové, půdy jsou dlážděné a střecha byla v roce 1999 měněná za pálené tašky. Krov je v dobrém stavu. Původní dokumentace k domu je u realitní makléřky a bude k dispozici na prohlídce. Sítě: Voda je do domu přivedena z obecního vodovodu + na pozemku je studna na užitkovou vodu Odpad je svedený do městské kanalizace Vytápění zajišťují akumulační kamna Ohřev vody zajišťuje elektrický bojler Elektřina a plyn zavedeny Výměry: Celková plocha pozemku: 616 m2 Plocha zahrady: 382 m2 Plocha garáže: 39 m2 Plocha přízemí domu: 70 m2 Plocha sklepa: 40 m2 Plocha podkroví: 40 m2 Zahrada okolo domu je porostlá trávou a je kompletně oplocená. Stojí na ní garáž, která byla dostavovaná v pozdějších letech o výměře 39 m2 a dále zde najdeme studnu s užitkovou vodou. Parkovat se dá bez problému na pozemku, kam lze vjet skrze vrata a nebo v Libušínské ulici. Hledáteli dům, který si rádi zrekonstruujete podle svých představ v místě veškeré občanské vybavenosti a skvělé dostupnosti jak na dálnici, tak do města, ale také do přírody, zavolejte mi, domem Vás ráda provedu. Pro koupi domu zajistím kompletní realitní a právní servis. Kontaktujte mě, prosím, pro domluvení prohlídky: Hana Procházková TAURUM reality Uvedené výměry jsou orientační. PENB nemáme k dispozici, vzhledem ke stavu domu uvádíme třídu G.


