Prodej - dům/vila, 340 m²
Prodej rodinného domu 340m² + zahrada 349m² - Plzeň - Černice
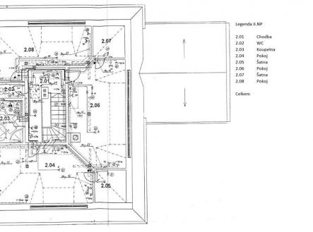
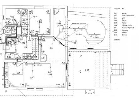
Popis nemovitosti Na první pohled nenápadný, ovšem uvnitř nabízí velkorysý prostor pro pohodlné bydlení s veškerým komfortem, který si umíte představit. Takový je rodinný dům v Plzni – Černicích, v jedinečné lokalitě v sousedství podobných rodinných domů, nedaleko řeky Úhlavy a přitom v dosahu městské dopravy a ruchu velkoměsta. Podívejte se ve fotodokumentaci na video nahrávku a fotografie domu. Informace k domu Dům byl postaven před 25 lety, tedy je v nejlepším věku. Jedná se o kvalitní stavbu, ve své době v nadstandardních parametrech. Kvalitu stavby ovšem oceníme i dnes. Hlavní obytný prostor začíná prostornou vstupní halou, jejímž hlavním prvkem je točité schodiště s kovaným zábradlím. V této části domu se dále nachází šatna, koupelna s WC a pokoj, který sloužil jako pracovna. Obývací část dále pokračuje kuchyňským koutem s plně vybavenou kuchyňskou linkou. Krbová kamna nejen pro dlouhé zimní večery dodávají obývacímu prostoru nádech příjemné domácí atmosféry. Navazující prostor bazénu za prosklenými dveřmi je pak už jen třešinkou na dortu. Z bazénu můžete pohodlně vstoupit na terasu, přičemž zde máte naprosté soukromí. Privátní prostory domu jsou důmyslně ukryty před zvědavými zraky sousedů i kolemjdoucích. V prvním patře domu jsou 3 ložnice, koupelna s vanou a sprchovým koutem a samostatné WC. Z každého pokoje si můžete užít nádherný výhled do okolí. Přízemí domu pak je věnováno výhradně technickému zázemí domu, je zde sklep, garáž pro dvě auta, technická místnost s plynovým kotlem, prostor pro skladování dřeva do krbu, a další prostory, které lze využít dle libosti příštího majitele. Vytápění domu a teplou vodu zajišťuje plynový kotel. Na střeše jsou umístěny solární panely, které vyrábějí energii nejen pro potřeby domu, ale energie je rovněž na základě platné smlouvy vykupována státním operátorem trhu s elektřinou OTE, což ve výsledku znamená, že výnosy z takto vyrobené energie pokryjí náklady domu na spotřebu, ale přináší i menší zisk. Smlouva je platná do roku 2029. Celková podlahová plocha obytných místností tvoří 340m2. Z toho technické zázemí představuje 96m2. Celková plocha zahrady činí 349m2. Pozemek celkem včetně zastavěných ploch a nádvoří tvoří 551m2. Blízké okolí Dům leží v klidné části Plzně ve čtvrti Bručná. Veškerá občanská vybavenost je dostupná trolejbusy MHD, které vás pohodlně dovezou až do centra města. Základní i mateřské školy jsou vzdálené několik minut pěší chůze. Pohodlně se dopravíte i MHD. Nedaleko je nákupní centrum Olympia, poliklinika Slovany, park Homolka, kavárny, restaurace i zařízení sportovního vyžití. Procházky kolem nedaleké řeky Úhlavy jsou samozřejmostí. Pro koupi zajistím kompletní realitní a právní servis a výhodné financování hypotečním úvěrem. Zavolejte mi, nebo napište, domluvíme si prohlídku, nemovitost Vám ráda ukážu.


