Prodej - dům/vila, 119 m²
Prodej rodinného domu 119 m², pozemek 552 m²
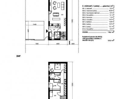
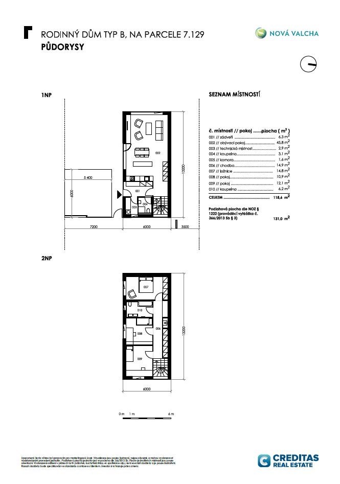
Dovolujeme si vám nabídnout rodinný dům 4+kk o celkové výměře 119 m², zahradou o výměře 422 m² a předzahrádkou 50 m², který je součástí nově vznikající již 7. etapy projektu Nová Valcha. Plánované dokončení 7. etapy projektu je zkraje roku 2026. V docházkové vzdálenosti projektu se nachází menší prodejna potravin. Za většími nákupy vyrazíte do nákupního centra Borská pole. Autobusová zastávka MHD je vzdálena pár minut pěší chůzí, odkud vás autobus dopraví přímo do centra. Vlakové nádraží je vzdálené necelé 2 km. V sousední Lhotě a Liticích pak najdete veškerou další občanskou vybavenost včetně mateřské a základní školy, knihovny nebo pošty. Lokalita: Území Nové Valchy se nachází v jihozápadní části Plzně, čtvrtém největším městě České republiky. Ze severu je vymezeno lesy spojující Valchu a Borská pole, z jihu stávající vilovou zástavbou. Přilehlé lesy vybízejí k výpravám do přírody, ale i k aktivnímu vyžití po celý rok. Za indoorovými aktivitami lze zajít do blízké tělocvičny TJ Sokol Valcha, kde se můžete po sportovních výkonech občerstvit v hospůdce Na Zelené Louce. Více informací o tomto řadovém domě a kompletní nabídce najdete na našem webu creditasre. Prodej přímo od majitele.


