Prodej bytu, 2+kk, 53 m²
Prodej investičního bytu 2+KK ve Vrchlického ulici v Plzni
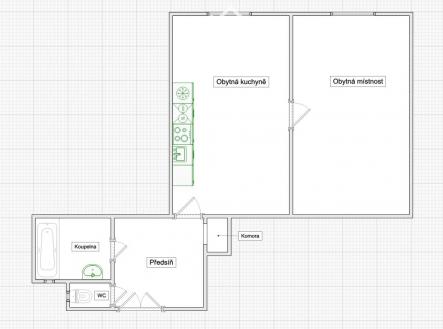
Nabízíme Vám ke koupi investiční byt o dispozici 2+KK a výměře 53,76 m2 ve Vrchlického ulici v Plzni. Byt je umístěný ve 4. patře zděného domu s výtahem. Dispozičně je byt rozdělený na vstupní předsíň s úložným prostorem, obývací pokoj s kuchyňským koutem, ložnici, koupelnu s vanou, samostatné WC a malou komoru. Byt je v původní stavu, koupelna a WC jsou zděné. Plastová okna jsou orientovaná západním směrem. Bytový dům, ve kterém se byt nachází, prošel revitalizací zahrnující zateplení domu, novou fasádu, výtah, výměnu oken, stoupaček a další údržbu domu. Byt se nachází v bezprostřední blízkosti Fakultní nemocnice Plzeň - Bory. Je vhodný jak pro investici, tak na klasické bydlení. Velkou výhodou je kompletní veškerá občanská vybavenost v blízkém okolí a skvělá dostupnost na MHD. Koupi bytu je možné bez problému financovat hypotečním úvěrem, s jehož zajištěním Vám rádi pomůžeme. V případě dalších dotazů, nebo pokud budete mít zájem o prohlídku bytu, se neváhejte obrátit na našeho makléře Michala Maška.


