Prodej bytu, 3+kk, 80 m²
Prodej bytu 3+kk, 80 m², Plzeň, ul. V Zahrádkách
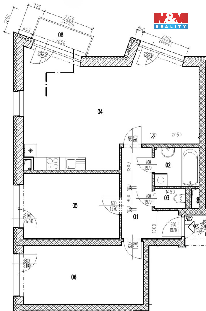
Moderní byt 3+kk s balkonem, garážovým stáním a společnou zahradou v klidné části Doubravky. Nabízíme k prodeji prostorný byt 3+kk (80 m²) s balkonem (3 m²), vlastním garážovým stáním v podzemní garáži a zahradou, kterou mohou užívat vlastníci bytu. Byt se nachází ve 3. podlaží cihlového domu v oblíbené a klidné lokalitě Doubravka, která je ideální pro rodinné bydlení. Interiér bytu je ve velmi dobrém stavu a nabízí světlý obývací prostor s přímým vstupem na balkon. Kuchyňský kout je prakticky řešen a plynule navazuje na obývací část. Dále byt disponuje dvěma samostatnými pokoji, oddělenou toaletou a koupelnou s vanou. Lokalita nabízí veškerou občanskou vybavenost – v blízkosti se nachází školy, školky, obchody, zastávky MHD i zeleň pro volnočasové aktivity. Neváhejte nás kontaktovat pro více informací nebo domluvení prohlídky této atraktivní nemovitosti.


