Prodej bytu, 3+kk, 134 m²
Prodej bytu 3+kk, 134 m², Plzeň, ul. Kamenická
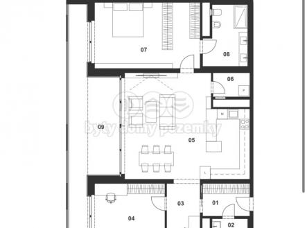
Nabízíme k prodeji exkluzivní prostornou jednotku 3+kk (pokrývá celé 8.NP) novostavby domu s výtahem. Byt skýtá překrásný výhled na centrum Plzně, včetně katedrály sv. Bartoloměje. Celá budova (16 bytů) je postavena z kvalitních materiálů a se skvělým zpracováním, na což dává developer důraz. Ohřev vody dálkově, celá budova je vytápěna podlahovým vytápěním. Byt se skládá z prostorného obývacího pokoje + kk, dále ložnice, pokoje (všechny tři uvedené pokoje mají vstup na lodžii), dvou koupelen, chodby, komory a součástí prodeje je také sklep. Výhodou je bezbariérový přístup. Cena parkovacího stání je 350.000 Kč včetně DPH, není součástí kupní ceny. Stav bytu je včetně dokončených podlah, kompletního vybavení obou koupelen, a dveří (vnitřních i vstupních - ty jsou jako jediné v domě na čip/aplikaci). Umístění budovy je 3 minuty chůze od Náměstí Republiky. Nezmeškejte příležitost být majitelem této ojedinělé nemovitosti, ať už pro sebe či jako investiční příležitosti.


