Prodej bytu, 2+kk, 55 m²
Novostavba bytu 2kk s balkonem - Plzeň Skvrňany
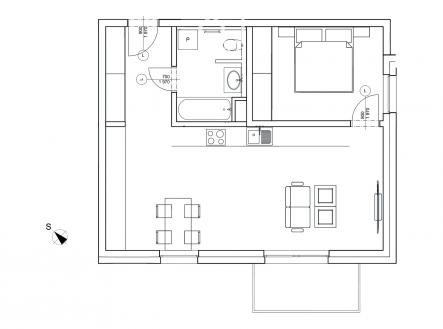
Máme pro Vás připraven nový projekt pod názvem „Byty Na Okraji“. Předmětná jednotka 2kk o výměře 55 m2 + balkon (5 m2) se bude nacházet ve 4. NP cihelného domu s výtahem. Orientace bytu - jih, vnitroblok. Dům bude situován v lokalitě Předních Skvrňan a nabídne klidné místo spojené s dobrou dostupností centra města i nájezdu na páteřní infrastrukturu. Půjde o menší bytový dům zasazený do původní zástavby v ulici Na Okraji. Složen bude výhradně z bytových jednotek. Půjde zejména o malometrážní byty (1kk, 2kk) s podlahovou plochou od cca 30 m2 až do 60 m2. Téměř každý byt bude disponovat balkónem. V ceně bytu bude dokončení v daném standardu (bez kuchyňské linky a finálního osvětlení). Prezentované vizualizace se zařízením jsou pouze ilustrativní. Bytový dům je projektován jako nízkoenergetický, energetická třída B. Náklady na Vaše nové bydlení budou velmi nízké, což jistě v budoucnosti oceníte. Vytápění bude řešeno dálkově (Plzeňská Teplárna). Výstavba zahájena, předpokládané dokončení červen 2027. Pro bližší informace mne neváhejte kontaktovat.


