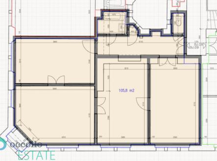
Prodej bytu, 3+1, 105 m²
Exkluzivní nabídka bytu po částečné rekonstrukci v žádané lokalitě Plzně!
Hledáte moderní bydlení v blízkosti centra města s výbornou občanskou vybaveností? Pak je tento prostorný byt 3+1 po částečné rekonstrukci přesně pro Vás! Nachází se na adrese Křížkova v Plzni, Severní Předměstí. Byt prošel částečnou rekonstrukcí, která zahrnuje zejména novou kuchyňskou linku. Koupelna bude zrekonstruována na náklady prodávajícího dle vašeho přání, což Vám dává jedinečnou možnost získat byt s koupelnou přesně podle Vašich představ. S rozlohou 106 m² nabízí dostatek prostoru pro pohodlné bydlení. Dispozice bytu zahrnuje předsíň, prostornou kuchyni, obývací pokoj, 2 ložnice, koupelnu a samostatné WC. Tato nemovitost představuje skvělou investiční příležitost. Díky strategické poloze v blízkosti centra Plzně, které je vzdáleno pouhých 10 minut chůze, a výborné občanské vybavenosti v okolí, je tento byt ideální volbou pro ty, kteří hledají kombinaci moderního bydlení a výnosné investice. Schéma investičního potenciálu: - Atraktivní lokalita v blízkosti centra Plzně - Byt po částečné rekonstrukci s koupelnou zrekonstruovanou na náklady prodávajícího dle přání kupujícího - Prostorná dispozice 3+1 s rozlohou 106 m² - Výborná občanská vybavenost v okolí (školy, školky, lékaři, obchody) - Snadná dostupnost MHD a nákupního centra RONDEL - Možnost dlouhodobého pronájmu nebo budoucího prodeje se ziskem Neváhejte a využijte této jedinečné příležitosti! Kontaktujte nás ještě dnes a domluvte si prohlídku. Rádi Vám také pomůžeme s financováním této nemovitosti. Byt se prodává formou aukce, což Vám dává možnost získat ho za nejlepší možnou cenu. Zavolejte nám a udělejte první krok k Vašemu novému domovu nebo výnosné investici!


