Prodej bytu, 1+1, 51 m²
Byt 2+kk v Plzni
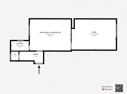
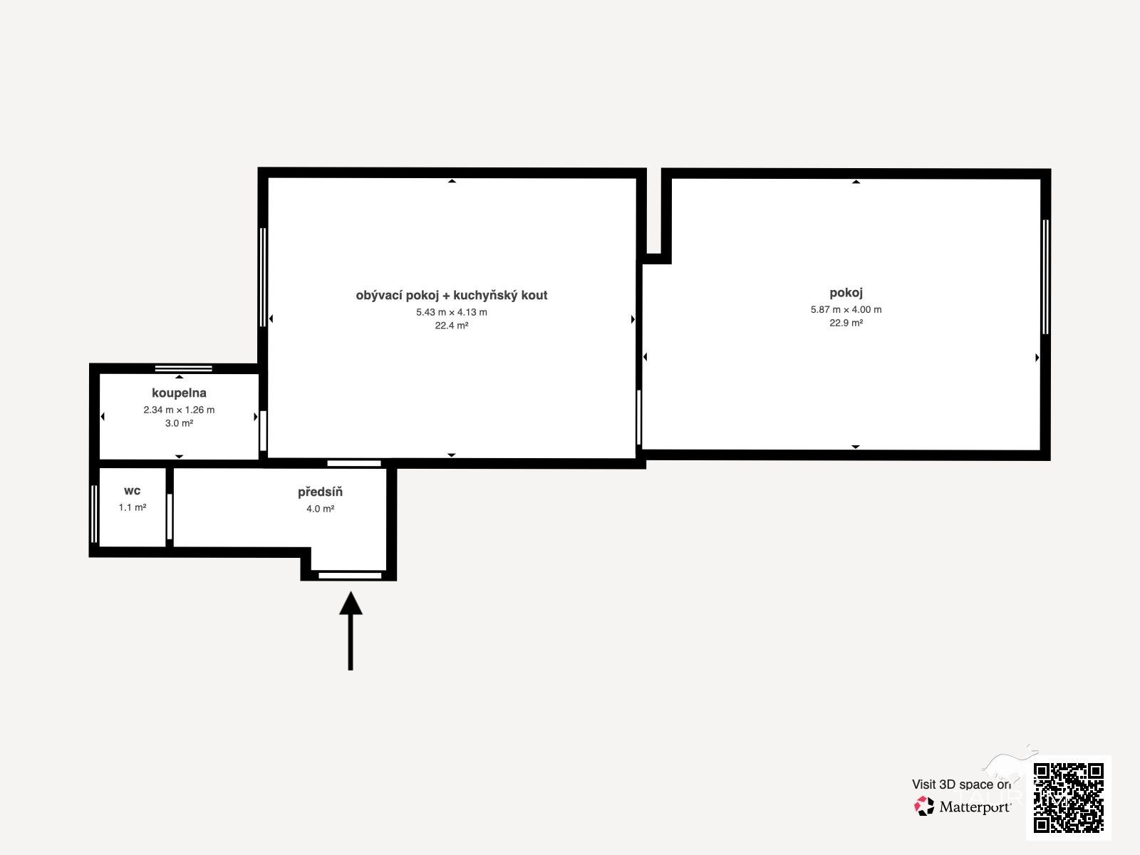
Představuji k prodeji byt o dispozici 2+kk nacházející se na adrese Karlova 1037/38, Plzeň. Podívejte se na samostatnou stránku bytu – odkaz ve videoprohlídce . Kompletní představu o prostorovém uspořádání bytu získáte prohlédnutím 3D virtuální prohlídky zde v inzerci. Lokalita: Dům s bytovou jednotkou se nachází v širším centru Plzně, které se vyznačuje bohatou občanskou vybaveností. V bezprostředním okolí se nacházejí školy, školky, restaurace, kavárny, obchody i další služby pro každodenní život a například na náměstí je to pouhých 5 minut chůze. Velkou výhodou je také výborná dostupnost MHD, včetně blízkosti centrálního autobusového nádraží, což zajišťuje pohodlné spojení do okolních měst nebo na dálkové trasy. Byt: Bytová jednotka o výměře 50,8 m² je situována ve 3. patře, které je zároveň posledním podlažím domu. Dispozice bytu zahrnuje vstupní chodbu, obývací pokoj s kuchyňským koutem, samostatnou ložnici, koupelnu a oddělené WC. Byt se prodává včetně kuchyňské linky s elektrickým sporákem a vybavením koupelny, jinak je ponechán nezařízený, což novému majiteli umožňuje upravit si interiér dle vlastních představ. Technické informace: Byt je napojen na veřejný vodovod a kanalizaci. Vytápění a ohřev vody jsou řešeny vlastním plynovým kotlem umístěným přímo v bytě. Bytový dům: Jedná se o menší cihlový bytový dům o čtyřech nadzemních podlažích bez výtahu. Dům prošel několika úpravami, disponuje například novou fasádou nebo plastovými okny s dvojskly. Součástí domu je také vnitroblok, který mohou obyvatelé využívat například k posezení či odpočinku. Tento byt doporučuji především díky jeho dobrému technickému stavu bez nutnosti okamžitých investic, praktické dispozici a atraktivní lokalitě. Pro koupi bytu zajistím kompletní realitní a právní servis. Kontaktujte mě pro domluvení prohlídky: Jan Štěpánek TAURUM reality Uvedené výměry jsou orientační.


