Pronájem - výrobní prostor, 2 804 m²
AREÁL PRO VÝROBU A SKLADOVÁNÍ PŘÍMO V PLZNI O CELKOVÉ VÝMĚŘE 4261 m2
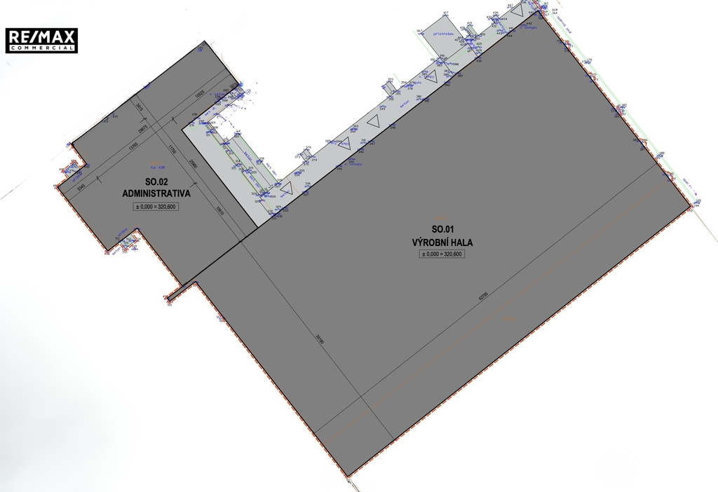
Představuji Vám pěknou výrobní a skladovací halu s administrativním zázemím v lokalitě Plzeň Božkov. Hala o celkové výměře 2181 m2 u.p. (plus kanceláře o výměře 160 m2 u.p., které jsou umístěny ve 2.NP) je umístěna v areálu, který je oplocený s vjezdovou bránou. Hala je postavena ze čtyř lodí o průběžné výšce 6 m. Hala samotná disponuje vjezdovými vraty 4 m výška a 3,5 m šířka. V hale se nachází kompresorovna, rozvod stlačeného vzduchu, dostatek elektro zásuvek 380 V. Z kanceláří ve 2.NP je přímý výhled do výrobní haly i do skladu. Kanceláře mají vlastní světlíky, je tedy zajištěno dostatečné denní světlo.Součástí výrobní haly je také samostatná, oddělená kancelář v přízemí haly určená pro mistra. Přímo z haly lze vstoupit do zázemí kde se nachází jídelna, denní místnost, sociální zařízení pro zaměstnance. K hale patří zpevněné plochy o celkové výměře 1415 m2. Naproti hale se nachází samostatný administrativní objekt, který disponuje kancelářemi a zázemím pro administrativní pracovníky o celkové výměře 499 m2. Technické informace: čtyřlodní výrobní hala obdélníkového půdorysu o rozměrech 60,0x36,5 m je tvořena jednopodlažním ocelovým skeletem, hala je postavena na ocelových sloupech, opláštění je provedeno sendvičovým pláštěm se zateplením z minerální vlny. Příčky jsou do 3,5 m zděné, nad tuto úroveň ze sádrokartonu. Střecha je sedlová, z trapézových plechů zateplená stříkanou PUR pěnou. V zadní části haly je provedena vestavba kanceláří. Okna jsou plastová, izolační dvojskla. Podlaha je z silničních panelů s vrchní vrstvou betonu, nosnost 2t/m2. V hale se nachází LED osvětlení a jsou instalovány skladovací regály Jungheinrich, k dispozici jsou paletové vozíky a VZV, software na skladovací systém, datový rozvod v serverovně, docházkový systém, vybavení kanceláří. Administrativní budova je tvořena ocelovým skeletem, opláštění je provedeno ocelovými sendvičovými panely s minerální vlnou, okna jsou dřevěná, zdvojená a částečně plastová izolační dvojskla, podlaha betonová s vrstvou z pvc, koberců. Vnitřní příčky jsou v kombinaci zděné a částečně sádrokartonové. Obě budovy jsou napojeny na veškeré sítě, areál má vlastní trafo stanici. Vytápění v hale je teplovzdušnými topidly umístěnými na stěnách a v administrativní budově radiátory, zdrojem tepla je plynová kotelna. V kancelářích jsou klimatizační jednotky. Objekty jsou napojeny na obecní vodu a kanalizaci, v budovách jsou rozvedeny datové sítě. Do areálu je možný vjezd kamionů, součástí haly je nakládací rampa. Parkování osobních a nákladních vozidel přímo v areálu. Nájemní smlouva minimálně na 3 roky s možností prodloužení. Kauce ve výši 300.000,- Kč + DPH, zálohy na poplatky Elektřina, plyn a odpad budou převedeny na nájemce. Kauce ve výši 600.000,- Kč. V hale může být až 180 zaměstnanců ve 3 směnách. Výborná dopravní dostupnost, bus přímo na Hlavní nádraží, trolejbus č. 12 cca 150 m od haly. Velmi pěkné. Doporučujeme!

