Prodej - dům/vila, 270 m²
Prodej rodinný dům, 270 m², Pláně, Ondřejov
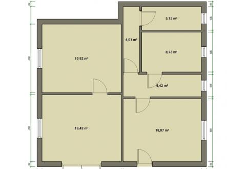
Nabízíme k prodeji prostorný a velmi zachovalý rodinný dům typu „šumperák“ s užitnou plochou cca 270 m², situovaný na klidném okraji obce Pláně u Ondřejova, v lokalitě, která potěší každého milovníka soukromí a přírody. Dům se nachází na výjimečném místě s otevřeným, ničím nerušeným výhledem do okolní krajiny, bez přímých sousedů v zádech. Nabízí dostatek klidu, prostoru a soukromí, a přitom zůstává dobře dostupný. Nemovitost je průběžně udržovaná, ve velmi dobrém technickém stavu a ihned obyvatelná. Zároveň představuje ideální základ pro rekonstrukci dle vlastních představ – s potenciálem modernizace, zvýšení komfortu i snížení energetické náročnosti. Dispozice domu je mimořádně velkorysá – 14 místností, balkon, garáž a rozsáhlé sklepní prostory. Díky své koncepci je dům vhodný i k rozdělení na dvě samostatné bytové jednotky, což ocení jak vícegenerační rodiny, tak investoři. Celková výměra pozemku činí 1 487 m² a nabízí dostatek prostoru pro zahradu, relaxační zónu i rodinné zázemí. Vytápění je řešeno kotlem na tuhá paliva, ohřev vody bojlerem, odpad sveden do septiku. Výjimečná příležitost pro ty, kteří hledají poctivý dům s charakterem, velkým prostorem a silným potenciálem v krásném a klidném prostředí. Pro více informací a sjednání prohlídky kontaktujte makléře.


