Prodej bytu, 4+kk, 166 m²
Prodej 4+kk 158 m² + terasa 38 m² + parkování
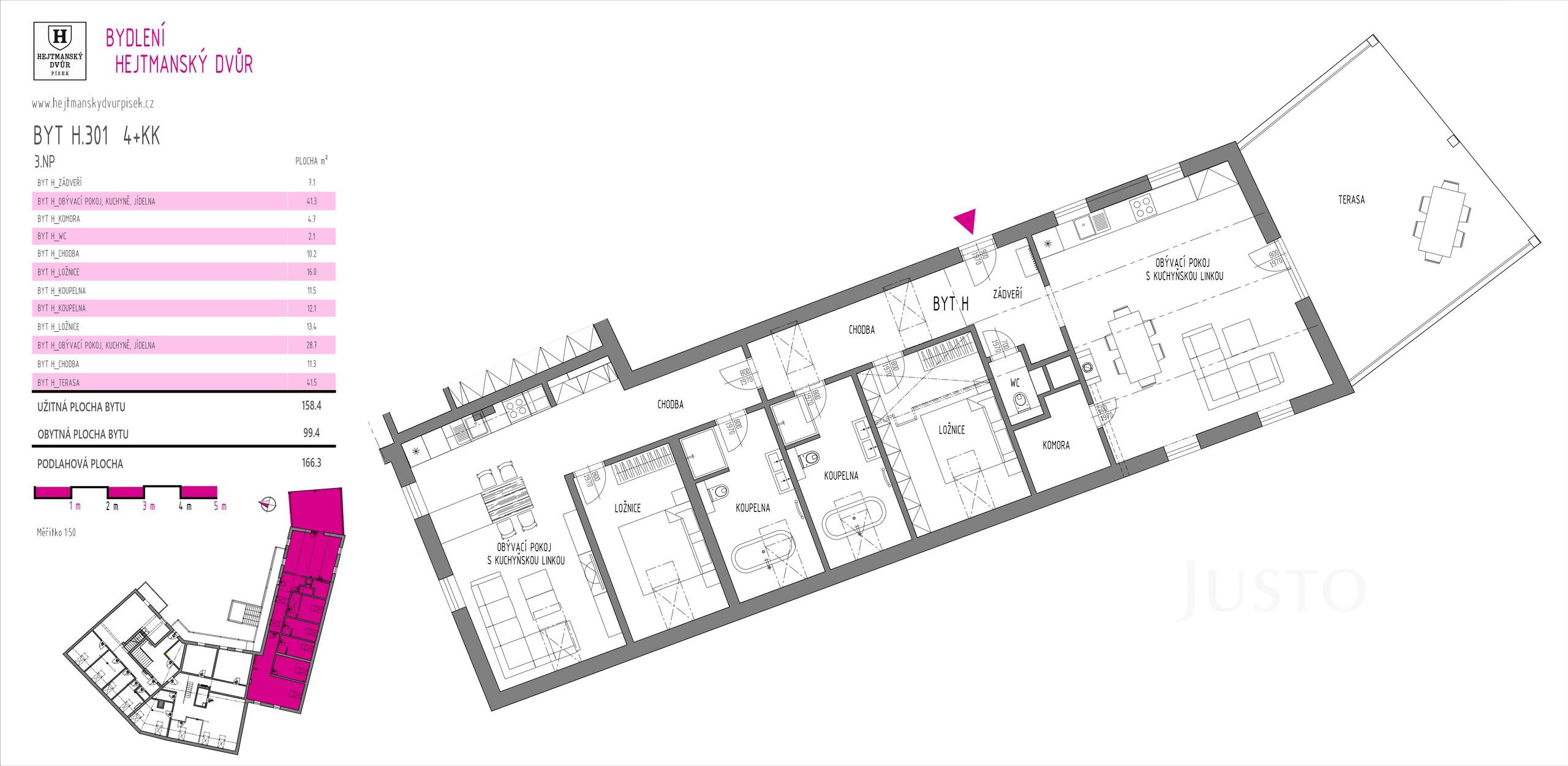
V exkluzivní lokalitě ulice Kocínova, v samotném centru města Písek, vzniká jedinečný developerský projekt Hejtmanský dvůr, který spojuje noblesu historické architektury s nejmodernějšími technologiemi současného bydlení. Dům prochází důkladnou a citlivou rekonstrukcí, při níž architekt kladl důraz na zachování původních historických prvků – včetně působivých kleneb ve vybraných bytech – a jejich propojení s nadčasovým designem. Projekt nabízí komorní rezidenční bydlení s výtahem, promyšlenými a vzdušnými dispozicemi (2+kk – 4+kk) a dostatkem úložných prostor. Každý byt je navržen v luxusním standardu, s důrazem na kvalitu materiálů, funkčnost i estetiku. Samozřejmostí jsou velkorysé sklepy, praktické úložné prostory přímo v bytě a společná kolárna. Byt číslo H 301, o dispozici 4+kk na 3. nadzemním podlaží. Jedná se o výjimečný byt s velmi variabilním využitím, vhodný např. jako dvougenerační bydlení či kombinace bydlení a podnikání – byt je řešen jako dva samostatné moduly, z nichž první tvoří 2+kk s koupelnou, dvěma toaletami, terasou a komorou, a druhý modul představuje další samostatnou jednotku 2+kk. Plochy bytu: Podlahová plocha bytu (plocha bytu včetně vnitřních příček, dle vyhlášky č. 366/2013, §2 a §3) je 166,3 m². Vnitřní plocha bytu (bez příček, bez balkonu a sklepu) je 158,4 m². Sklep o výměře 8 m². Terasa o výměře 38m² Koupelna: Kamenické rohy – bez lišt. Velkoformátové dlaždice 60×120 cm. Přesné spáry. Top zařizovací předměty. Promyšlené rozvržení a doplňky. Vybrat si můžete ze dvou nadčasových barevných provedení. Dveře a podlahy: Podlahové vytápění, vinylová krytina. Tři barevná provedení podlah na výběr. Interiérové dveře s výškou 210 cm ve dvou barevných variantách. Chytrá domácnost LOXONE: Ovládání dveří skrze tablet v bytu. Okamžitá kontrola spotřeby energií za byt. Ovládání teploty v každé místnosti. Ovládání předokenních žaluzií. Ovládání – nabíjení elektromobilu na Wallboxu. Součástí projektu jsou zastřešená parkovací stání v uzavřeném dvoře, který bude zabezpečen dálkově ovládanými vraty. Ke každému parkovacímu místu je připravena nabíječka pro elektromobil. O komfort a moderní způsob bydlení se stará inteligentní domácnost Loxone, připravenost na klimatizaci a efektivní technické řešení domu – vytápění plynovým kotlem a fotovoltaická elektrárna na střeše, která zajišťuje elektřinu pro společné prostory. Hejtmanský dvůr představuje harmonii klidu jižních Čech a pohodlí městského života. Elegantní architektura, uzavřený dvůr se zelení a vysoký standard provedení vytvářejí ideální domov pro ty, kteří hledají výjimečné bydlení bez kompromisů – s veškerými službami, kulturou i přírodou na dosah. Developer realizuje projekt výhradně z vlastních finančních prostředků, takže financování z Vaší strany je velmi jednoduché a bezpečné – na počátku hradíte pouze 10 % z kupní ceny, navíc uložených do advokátní úschovy, přičemž zbývající část kupní ceny se doplácí až po kolaudaci a podpisu kupní smlouvy, což Vám poskytuje dostatečný časový prostor k zajištění financování koupě. Energetická náročnost budovy je aktuálně uváděna ve třídě D dle projektové dokumentace. Průkaz energetické náročnosti je v současné době přepracováván, neboť původní výpočet nezohledňuje inteligentní řízení domu a bytů systémem Loxone (samostatná regulace teploty v jednotlivých místnostech, meteostanice) ani fotovoltaickou elektrárnu o výkonu cca 10–17 kWp určenou pro denní dohřev teplé vody pro byty.


