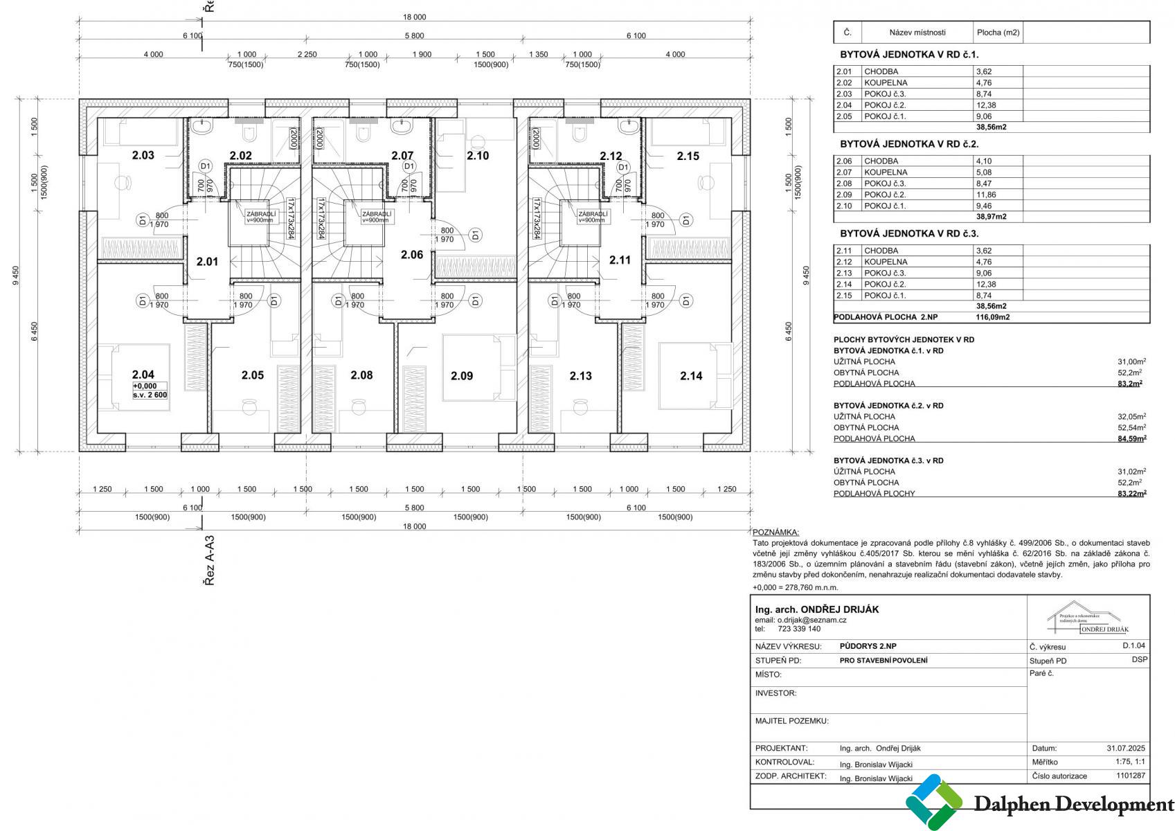
Prodej - dům/vila, 85 m²
Představujeme vám exkluzivní nabídku moderního řadového rodinného domu na ulici Ráčkova v Petřvaldě
Tato lokalita je jako stvořená pro rodinné bydlení. Klidné prostředí obklopené zelení, skvělá dostupnost do centra města i okolních obcí a kompletní občanská vybavenost v dosahu. Projekt zahrnuje řadové domy s užitnou plochou 83 m2 a 85 m2 a zahradou o výměře od 281 m. Každý dům nabízí promyšlenou dispozici 4+kk ve dvou podlažích s moderní architekturou včetně ploché střechy. V přízemí se nachází světlý a vzdušný obývací pokoj propojený s kuchyní, který poskytuje dostatek místa i pro velký jídelní stůl. Přímý vstup na zahradu umožní pohodlné propojení interiéru s exteriérem a poskytuje tak ideální zázemí pro rodinný život. V patře jsou situovány ložnice a prostorná koupelna, což zajistí soukromí i pohodlí. Praktickým doplňkem je také pracovna či pokoj pro hosty a technická místnost se šatnou. Velkou předností je poloha pozemků a příjemný výhled do zeleně, který navozuje pocit klidu a soukromí. Před domem bude parkovací stání i prostor pro okrasné výsadby. Zahrada bude kompletně oplocena. Na přání lze dům doplnit například o venkovní žaluzie, terasu či bazén, případně i další technologie. Detailní informace o stavbě, použitých materiálech i možnostech těchto nadstandardních úprav vám poskytneme na vyžádání. Rádi vám také nabídneme možnost individuálních úprav, pokud byste měli specifické požadavky na jiné dispoziční řešení nebo vybavení. Detailní informace o projektu, standardech a možnostech úprav vám rádi poskytneme. K této nemovitosti máte připravené podrobné informace na: https://www.rezidencerackova.cz


