Prodej - dům/vila, 145 m²
Prodej RD v Petrově nad Desnou - Investice i bydlení
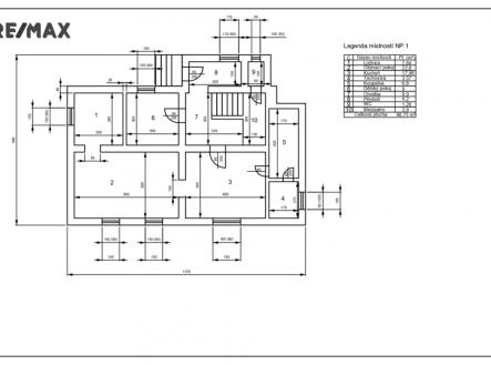
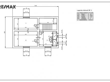
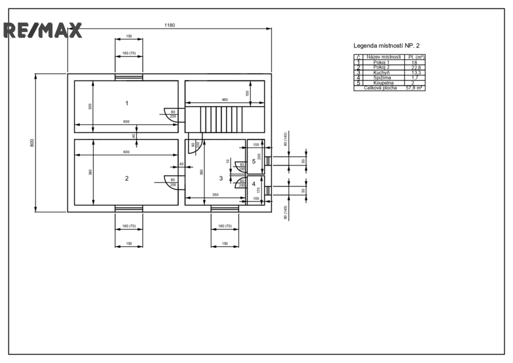
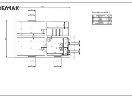
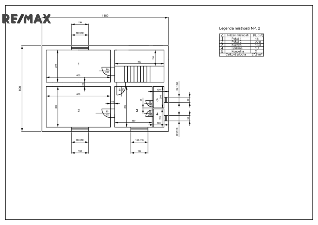
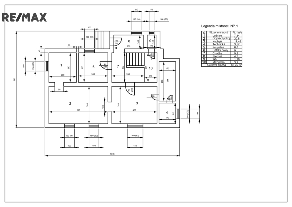
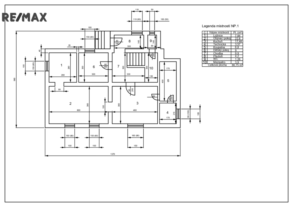
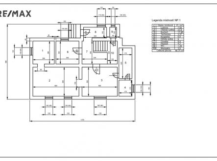
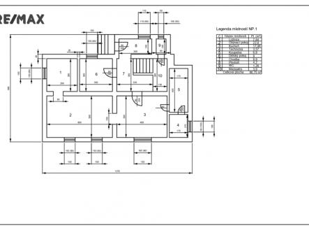
Dovolte mi představit vám úplnou novinku v podobě rodinného domu. Koupě této nemovitosti nabízí jedinečnou příležitost kombinace bydlení a investice. Konkrétní informace ohledně investiční příležitosti Vám ráda zodpovím osobně. Nemovitost se nachází ve spodní části obce Petrova nad Desnou v okrese Šumperk. Dům o dvou podlažích a celkové podlahové ploše 145 m² prošel částečnou rekonstrukcí. V přízemí je k dispozici předsíň, tři obytné pokoje, kuchyně, koupelna a technická místnost. Ve druhém patře je započatá rekonstrukce, která nabízí možnost vybudování samostatné bytové jednotky s dispozicí pokojů 2+1 nebo 3kk. V celém domě byly nově instalovány měděné rozvody elektřiny, datové sítě a vodovodní i topné potrubí. Vytápění je zajištěno plynovým kotlem v kombinaci s bojlerem určeným pro ohřev teplé vody. K domu náleží prostorná půda a sklep. V roce 2015 byla střecha opatřena plechovou krytinou, současně byly krovy sanačně ošetřeny. Rovněž zde byla instalována dřevěná okna s dvojskly značky Velux. Dům je napojen na obecní vodovod s možností čerpání vody i z vlastní kopané studny. Odpadní vody jsou svedeny do septiku. Součástí pozemku je rozlehlá rovinatá zahrada o ploše 2 337 m², která obsahuje zastavěnou plochu domu 121 m2, kůlnu a zděnou garáž o zastavěné ploše 29 m2. Ke garáži přiléhá prostorná pergola, zajišťující zázemí pro venkovní posezení. Pozastavte se nad touto nabídkou a pro poskytnutí bližších informací ohledně nemovitosti mě neváhejte kontaktovat.


