Prodej - dům/vila, 150 m²
Prodej Novostavby 150 m2, Peruc
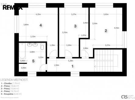
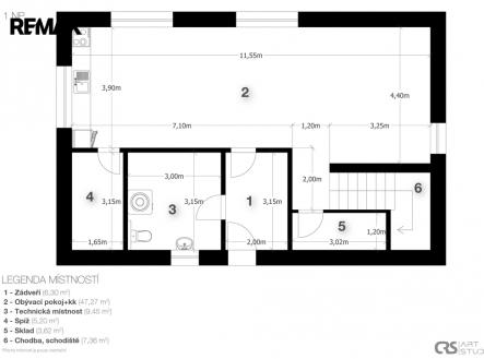
Dovoluji si Vám nabídnout novostavbu rodinného domu o dispozici 4+kk v obci Černochov u Peruce. Rodinný dům s užitnou plochou 150,05 m² je nabízen jako kompletně dokončený, tedy včetně podlahových krytin, tepelného čerpadla, bojleru, podlahového vytápění, interiérových dveří a plně vybavené koupelny. Kuchyňská linka není součástí ceny a je ponechána na preferencích budoucího majitele. Dům je rovněž připraven na instalaci krbových kamen. Jedná se o cihlovou stavbu s 50 cm zdmi, díky kterým není třeba zateplovat a dům doplňují dřevěný prvky. Nemovitost je napojena na vodovodní řád a disponuje vlastní ČOV. K domu náleží pozemek o velikosti 831 m². Parkování je zajištěno přímo u domu. Lokalita nabízí velmi dobrou dopravní dostupnost – autobusová zastávka je vzdálena pouhých 100 metrů. V blízkém okolí se nachází obce a města Peruc, Louny, Lovosice a Litoměřice, přičemž dojezdová vzdálenost do Prahy činí cca 45 minut. Dokončení stavby je plánováno na léto 2026. Rád Vás nemovitostí osobně provedu, těším se na setkání při prohlídce. Prodávající si vyhrazuje právo vybrat kupujícího na základě jím zvolených kritérií.

