Prodej - dům/vila, 150 m²
Prodej Novostavby 150 m2, Peruc
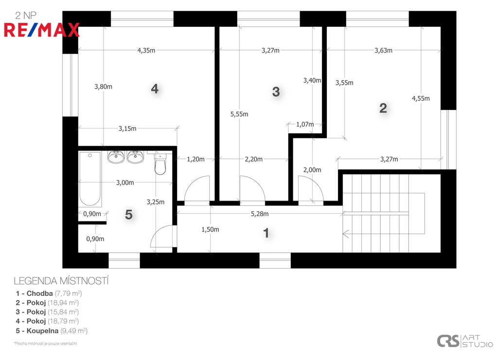
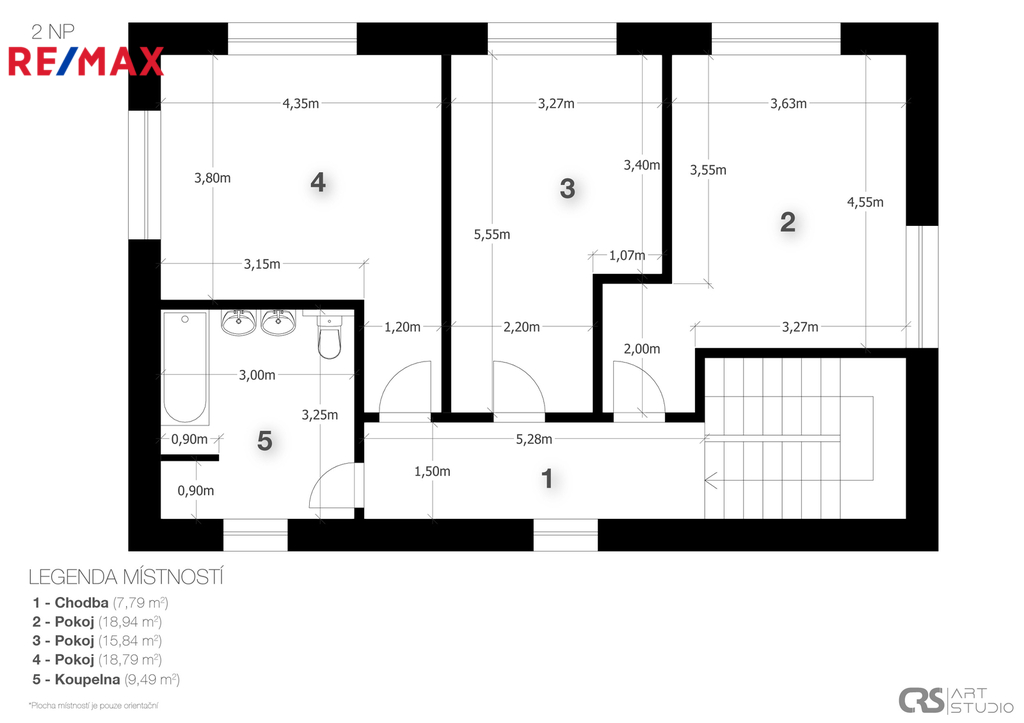
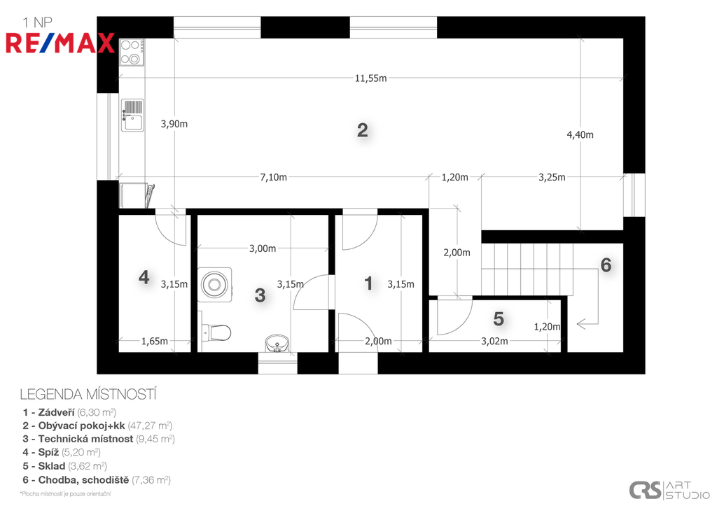
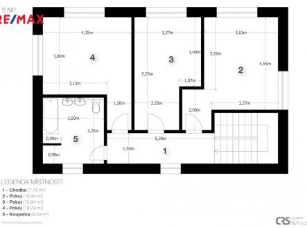
Dovoluji si Vám nabídnout novostavbu rodinného domu o dispozici 4+kk v obci Černochov u Peruce. Rodinný dům s užitnou plochou 150,05 m² je nabízen jako kompletně dokončený, tedy včetně podlahových krytin, tepelného čerpadla, bojleru, podlahového vytápění, interiérových dveří a plně vybavené koupelny. Kuchyňská linka není součástí ceny a je ponechána na preferencích budoucího majitele. Dům je rovněž připraven na instalaci krbových kamen. Jedná se o cihlovou stavbu s 50 cm zdmi, díky kterým není třeba zateplovat a dům doplňují dřevěný prvky. Nemovitost je napojena na vodovodní řád a disponuje vlastní ČOV. K domu náleží pozemek o velikosti 831 m². Parkování je zajištěno přímo u domu. Lokalita nabízí velmi dobrou dopravní dostupnost – autobusová zastávka je vzdálena pouhých 100 metrů. V blízkém okolí se nachází obce a města Peruc, Louny, Lovosice a Litoměřice, přičemž dojezdová vzdálenost do Prahy činí cca 45 minut. Dokončení stavby je plánováno na léto 2026. Rád Vás nemovitostí osobně provedu, těším se na setkání při prohlídce.

