Prodej - dům/vila, 166 m²
Prodej novostavby 4kk s garáží, 166 m2, zahrada 363 m2, Velké Chvalovice
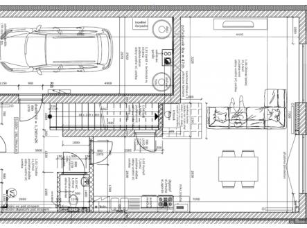
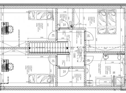
Konečně dost místa. K životu, k dýchání, ke snům a to hned. Nemovitost je v družstevním vlastnictví, počáteční vklad tvoří 20% z hodnoty nemovitosti. Zbytek splácíte formou nájmu. Možnost převodu do osobního vlastnictví po doplacení anuity je již po 5 letech. Na kraji Velkých Chvalovic, klidné části města Pečky, vznikla nová ulice s příznačným názvem Za Statkem. Právě zde na vás čeká úplně nový rodinný dům, který spojuje komfort moderní novostavby, dostatek prostoru i výhledy do krajiny. Dispozice 4+kk a celková plocha 166 m2, vám zajistí pohodlí, o kterém jste vždy snili. V přízemí se nachází garáž a hlavní obytná zóna - srdce domu - tedy kuchyňský kout propojený s velkorysým obývacím prostorem o výměře 42 m2. V patře následně klidová část, tedy 3 pokoje, koupelna se sprchovým koutem i vanou a dostatek úložného prostoru. Velká okna přinášejí do interiéru příjemné světlo a umožňují přímý vstup na soukromou zahradu o rozloze 363 m2. Ta je jako stvořená pro víkendová grilování, dětské hry nebo klidné večery pod širým nebem. Dům je vybaven kvalitními materiály a prvky, které potěší oko i praktičností - vinylové podlahy, moderní interiérové dveře, plastová okna s izolačním trojsklem, designová sanita značky SAT, baterie SIKO a elegantní obklady Rako Betonico. O vytápění se stará tepelné čerpadlo typu vzduch-voda od značky Willy, což znamená nízké provozní náklady a energetickou efektivitu. Rodinné domy v této lokalitě jsou napojeny na obecní vodovod a kanalizaci. Kromě vlastní garáže máte k dispozici i parkovací stání přímo před domem. Sedlová střecha s betonovou krytinou v antracitovém odstínu elegantně ladí s celkovým vzhledem stavby. Velké Chvalovice těží z vynikající polohy. Dálnice D11 je vzdálená jen 7 kilometrů, takže se do Prahy dostanete autem za přibližně 23 minut. Pokud preferujete hromadnou dopravu, vlak z Peček vás do centra Prahy dopraví za půl hodiny. Navíc je zde také autobusové spojení do Kolína, Poděbrad či Českého Brodu. Město Pečky nabízí vše, co potřebuje moderní rodina - školku, školu, ZUŠ, lékaře, obchody, kulturní centrum, knihovnu, restaurace i sportovní vyžití včetně sportovní haly a různých oddílů. V okolí najdete krásnou přírodu, cyklostezky, lesy, historické památky i přírodní koupání. Tato novostavba je připravena na to, stát se vaším domovem. A možná i začátkem úplně nové životní etapy. Zavolejte si o případné další dotazy a hlavně prohlídku - rád vás domem osobně provedu.


