Prodej - dům/vila, 219 m²
Prodej rodinného domu, 219 m2, Karlovarská, Pavlov
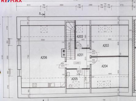
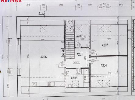
Nabízím k prodeji rodinný dům v osobním vlastnictví, užitná plocha 219 m2, stojí na pozemku o velikosti 902 m2 v ulici Karlovarská, Pavlov. Dům má 2 nadzemní a jedno podzemní podlaží a prošel kompletní rekonstrukcí před 10ti lety. 1.NP : obývací pokoj s plně vybaveným kuchyňským koutem a vstupem na zahradu, 2 ložnice, koupelna se sprchovým koutem, WC, šatna a chodba. 2.NP: obývací pokoj, 2 ložnice, koupelna, kuchyně. 1.PP: party místnost Dům je vhodný pro dvougenerační bydlení. Vytápění domu zajišťuje elektrický kotel, ohřev vody elektrický bojler, okna jsou plastová, v přízemí domu je podlahové vytápění. Na zahradě je k dispozici studna a lze zde vystavět druhý rodinný dům. Nemovitost je ve velmi dobrém stavu a připravena k okamžitému nastěhování. Poloha domu zajišťuje klidné bydlení s výbornou dostupností do centra Prahy, vlaková stanice je vzdálena 3 minuty od domu a za 21 minut se dostanete do stanice metra "A" Veleslavín nebo za 12 minut do Kladna. Na dálnici D6 se dostanete za 7 minut. V bezprostřední blízkosti domu se nachází dětské a fotbalové hřiště a nově vybudovaný tenisový kurt, což činí tuto lokalitu ideální pro rodiny s dětmi. Koupě domu lze financovat pomocí hypotečního úvěru. Pro další informace či zájem o prohlídku mě prosím kontaktujte. Prodávající si vyhrazuje právo vybrat kupujícího na základě jím zvolených kritérií.


