Prodej - dům/vila, 83 m²
RD 3+kk+pracovna, 84 m2, pozemek 600 m2, Pavlikov
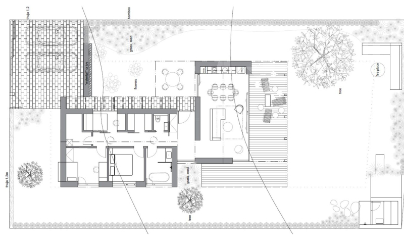
Prodeji rodinného domu 3+kk + pracovna + šatna + technická místnost, 84 m2, pozemek 600 m2, který se nachází v městysu Pavlíkov, okres Rakovník. Tento jedinečný dům navržený architekty ze studia Prague Design Hub byl kolaudovaný v roce 2025, vše je úplně nové - Kuchyňská linka na míru vč. vestavěných spotřebičů, indukční varná deska, horkovzdušná trouba, lednice s mrazákem, myčka, digestoř, koupelna s velkým sprchovým koutem, WC samostatně, okna hliníková s trojskly, venkovní elektricky ovládané hliníkové rolety, podlahové vytápění v celém domě, tepelné čerpadlo k vytápění domu, doohřev vody - bojler, chytrá domácnost - regulace teploty a stínící techniky přes Google Home. K domu náleží terasa, okrasná zahrada s automatickou závlahou napojená na retenční nádrž a vlastní studnu. K dispozici jsou 2 parkovací stání na pozemku a dobíjecí stanice pro elektromobil. Nemovitost je z inženýrských sítí napojena na obecní vodovod, kanalizaci a elektřinu. Dům je ihned k dispozici. Veškerá občanská vybavenost v Pavlíkově nebo v Rakovníku. Možné financovat pomocí hypotečního úvěru.


