Prodej - dům/vila, 134 m²
Bydlení přímo u vody
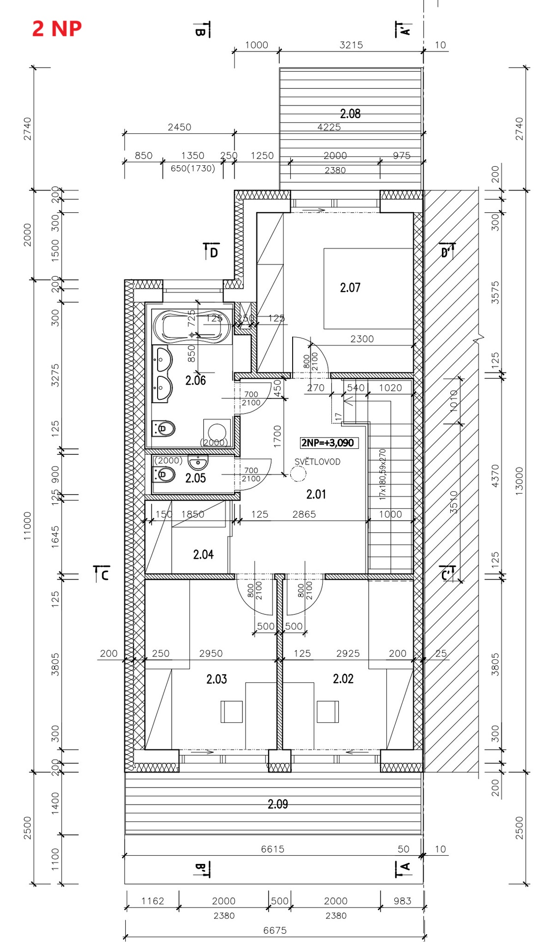
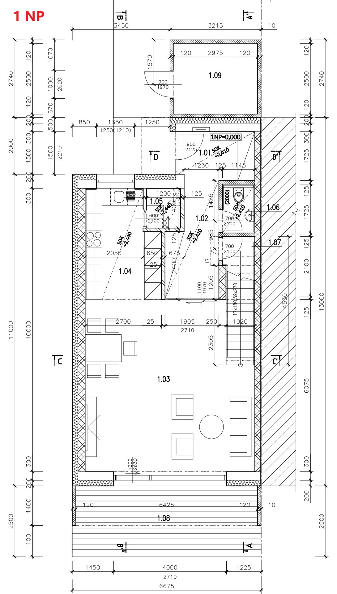
Výstavba nového cihlového řadového rodinného domu č. 15 v Pasohlávkách. Dům je energeticky velmi úsporný (třída A). Jedná se o řadový rodinný dům 4+kk na pobřeží Mušovských jezer ve druhé etapě výstavby projektu Rezidence Pasohlávky. Dům nabídne moderní a funkční dispozice, maximálně využitý prostor, dvě parkovací místa a pohodlné bydlení pro celou rodinu. Navržená dispozice může mít několik modifikací, jejich návrhy rádi zašleme, například až na 5+kk.


