Pronájem bytu, 4+kk, 350 m²
Pronájem luxusního bytu 4+kk (98 m2), terasa (16 m2), sklep 17 m2, chodba (12 m2), sdílená zahrada
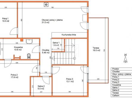
Pronájem luxusního bytu 4+kk (170 m2), z toho - byt (98 m2), terasa (16 m2), sklep 17 m2, chodba (12 m2), půda (30 m2). Dále je k dispozici a sdílená zahrada s pergolou a krbem (180 m2). Byt je umístěn v rodinném domě, do bytu se vchází společnou domovní chodbou, byt je oddělen vstupními dveřmi, za nimi se na chodbě nachází vestavěný botník a věšák, chodba o ploše 12 m2 se vstupem na zahradu, na chdobě lze umístit např. kola kočárek atp., z chodby je vstup i do klenbového sklepu, o ploše 17 m2.Samotný byt se nachází v 1.patře a má následující dispozici:schodiště se střešním oknem, nočními led světly a dalším designovým osvětlením, schodišťová podesta 3m2.Vstupní chodba s podlahovým topením o ploše 5,5 m2, zde je umístěno výklopné schodiště na půdu, šatna1 1,9 m2, se světlíkem do schodišťového prostoru, šatna2 5,0 m2, obývací pokoj 31m2, s krbovými kamny, jídelnou, se vstupem na terasu, kuchyňská linka s vestavěnými spotřebiči zn. Siemens a Liebherr, pokoj1 10m2, otočen do ulice, pokoj2 17,8m2, se vstupem do koupelny, pokoj3 13,1m2, se vstupem na terasu, pokoj3 je otočen na východní stranu, tzn. do zahrady, prostrorná koupelna s podlahovým topením 10,6 m2. Terasa je otočena na východní stranu, a má plochu 16m2, tuto terasu můžete v klidu užívat k nerušené relaxaci od jara do podzimu.V bytě jsou luxusní dřevěné dubové podlahy, designové dveře, kuchyňská linka a nábytek na míru.V každém pokoji je klimatizace/topení, tepelné čerpadlo vzduch-vzduch, zn. Mitsubishi.Byt má samostatný elektroměr a vodoměr.Centrum města 1 km, veškerá občanská vybavenost je v docházkové vzdálenosti. tj. škola, školka, Billa, Penny, čerpací stanice atp. Jedná se o Luxusní-nadstandartní bydlení kousek od centra města. S rychlým napojením na rychlostní silnici R37, 1 km od domu je sjezd na R37 (u Parama). Pro více informací a prohlídku nás neváhejte kontaktovat. Byt je k dispozici od 1.3.2026. ID 86226.


