Prodej - dům/vila, 197 m²
Prodej Rodinný dům, 197㎡
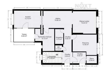
Nabízíme k prodeji krásný, prostorný rodinný dům v jedné z nejžádanějších lokalit Pardubic – Pardubičky, ulice Národních hrdinů. Klidné prostředí, skvělá dostupnost a kompletní občanská vybavenost v okolí dělají z této nemovitosti perfektní místo pro komfortní život. Dispozice domu 1. NP: vstupní chodba šatna kuchyň s přímým vstupem na terasu jídelna obývací pokoj pracovna koupelna se sprchovým koutem samostatné WC technická místnost 2. NP: ložnice dětský pokoj se šatnou další samostatný pokoj velká šatna koupelna s vanou i sprchovým koutem samostatné WC Další výhody nemovitosti kompletně podsklepeno zahradní domek pergola s krbem – ideální pro letní posezení samostatná dílna bazén na zahradě automatický závlahový systém Dům je vhodný nejen pro rodinné bydlení, ale také jako reprezentativní sídlo firmy či kancelářské prostory – např. advokátní kancelář, lékařskou ordinaci či jiné podnikání. Skvělá lokalita Pardubičky nabízejí příjemné prostředí, výbornou dopravní dostupnost a kompletní občanskou vybavenost – školy, školky, obchody, zdravotnická zařízení i veřejná doprava jsou v docházkové vzdálenosti. Do centra Pardubic se dostanete během několika minut. Více informací na prohlídce domu. Pro komunikaci uvádějte evidenční číslo zakázky N115092.


