Prodej - dům/vila, 218 m²
Prodej rodinného domu se zahradním domkem, pozemek 945 m2, Pardubice - Svítkov
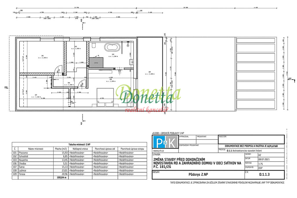
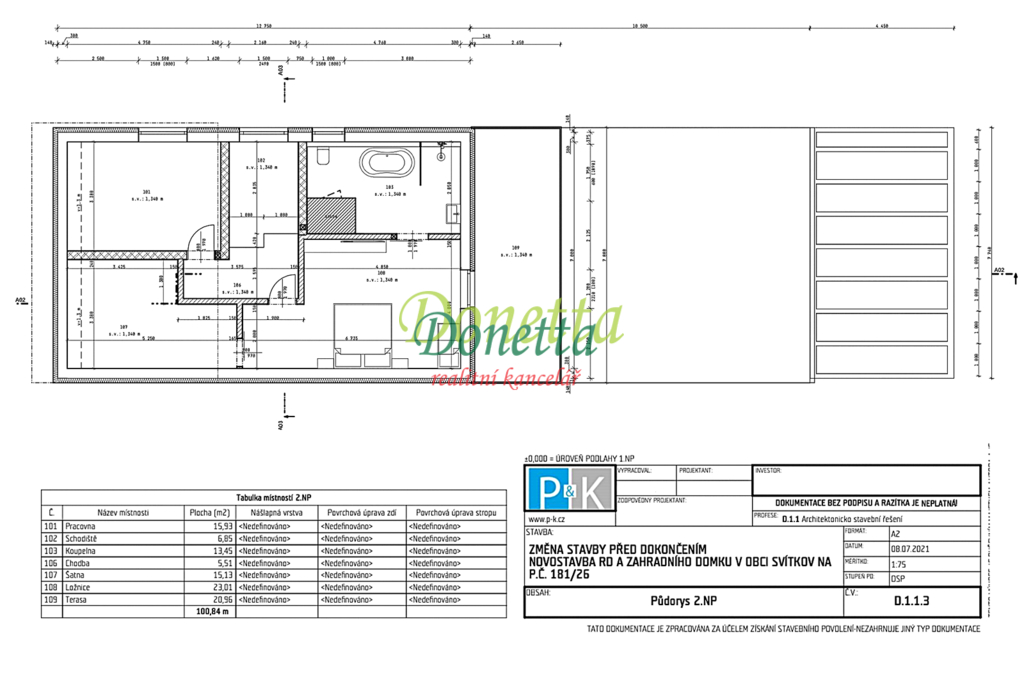
Nabízíme prodej rozestavěného rodinného domu o dispozici 5+kk v ulici U Bylanky, ve vyhledávané a klidné části Pardubic, městské části Svítkov. Rodinný dům s velkorysým vnitřním uspořádání je v současné době ve fázi pokročilé hrubé stavby a nachází se na pozemku o celkové výměře 945 m2. Nabízí zastavěnou plochu 174 m² a užitnou plochu 218 m2: Disponuje pěti pokoji, množstvím úložných prostor a technickým zázemím, včetně dvou šaten, pracoven a jedné technické místnosti. Dispozice domu zahrnuje v přízemí: vstupní předsíň, šatnu, technickou místnost, sklad, koupelnu, samostatné WC, dva pokoje (každý 15,93 m²), schodiště a prostorný obývací pokoj (44,56 m²) s kuchyňským koutem, jídelnou a přístupem na zahradu. Ve druhém podlaží je chodba, samostatný pokoj/pracovna (15,93 m2) a ložnice (23,01 m²) s vlastní koupelnou, šatnou a přístupem na terasu o velikosti 20,96 m². Stavba je založena na nových základových pasech v nezámrzné hloubce. Obvodové zdivo je z cihelných bloků Porotherm s tloušťkou 300 mm a zateplením EPS o tloušťce 140 mm. Nosné příčky jsou z Porothermu (240 mm) a nenosné z Porothermu (150 mm). Střecha je částečně sedlová s betonovou krytinou a částečně plochá s asfaltovým povrchem opatřeným kačírkem. První podlaží má strop tvořený betonovou konstrukcí Spiroll. Zateplení střechy zahrnuje minerální vatu (2 x 160 mm u sedlové střechy) a EPS (240 mm u ploché střechy). Objekt je vyztužen železobetonovým věncem v několika výškových úrovních. Plastová okna a dveře zajišťují moderní vzhled i funkčnost. Podlahové vytápění je řešeno teplovodním systémem s tepelným čerpadlem jako zdrojem energie. V zadní části pozemku se nachází, ve fázi před dokončením, objekt samostatné stavby zahradního domku se zastavěnou plochou 58,89 m2. Tento objekt má vstupní chodbu, koupelnu se sprchovým koutem, umyvadlem a toaletou, pokoj/pracovnu (9,52 m2) a pokoj (24,1 m2) se vstupem na zahradu. V budoucnu je možné využívat jako hostinský domek či prostor pro rodinné akce či oslavy. Parkování je plánováno za vjezdovou branou na vlastním pozemku. Skvělá dostupnost veškerých služeb a centra města. Pro více informací nebo sjednání termínu prohlídky neváhejte kontaktovat realitního makléře.


