Prodej - pozemek pro bydlení, 1 037 m²
Pozemek s projektem na vila dům s třemi BJ Pardubičky
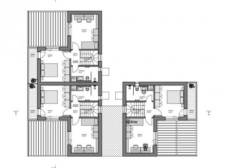
Nabízíme k prodeji stavební pozemek v městské části Pardubičky, který se nachází v klidné oblasti s vynikající občanskou vybaveností. Nejbližší zastávky MHD „Nemocnice“ a „K nemocnici“ obsluhují linky 2, 12, 22, 27 a 28, což zajišťuje výborné spojení do centra i dalších částí města. V okolí jsou také menší obchody, školy, zdravotnická zařízení a další služby. Jedná se o stavební pozemek p. p. č. 95/8, součástí je p.p.č.703 a p.p.č.701 o celkové výměře 1037 m², zahrnující i podíl 1/2 na komunikaci p. p. č. 95/15 (198 m²) s vyhrazeným parkovacím stáním. Vše se nachází v katastrálním území Pardubičky. Pozemek má kompletní inženýrské sítě – kanalizační a vodovodní přípojka zakončená šachtou na pozemku, elektropřípojka s elektroměrem a zaplaceným podílem u ČEZ. Je zde vydané územní rozhodnutí na variabilní rodinné vila domy s plochou střechou o maximální zastavěné ploše 230 m². Územní rozhodnutí je trvale platné, protože dva domy již byly realizovány. Je připravená studie na vila dům s třemi bytovými jednotkami o výměře 83,3m2. Dům je složen ze tří totožných částí do tvaru křížku, který pozemek člení do čtyř zón-vznikají tak tři soukromé zóny zahrady a společný předprostor domu pro parkování. Každá ze tří částí domu bude samostatnou jednotkou nabízející domov v těsném sepětí se zahradou. V přízemí je vždy obytný prostor s kuchyní a jídelnou otevřený velkými okny na terasu a do přilehlé soukromé zóny zahrady. V patře je pak klidná část s ložnicemi a koupelnou. Výhledy z ložnic jsou vždy do vlastní zahrady. V jižní části pozemku je malé dětské hřiště sloužící společně všem obyvatelům domu.Hřiště je přístupné společnou chodbou, vloženou do středu křížku, s možností uskladnění kol a kočárků. Díky své poloze, dostupnosti a právně vyřešeným podmínkám pro výstavbu se jedná o atraktivní nabídku pro výstavbu bydlení i investiční příležitost.


