Prodej - dům/vila, 90 m²
Rodinný dům 6+kk na svažitém pozemku 1 643 m², Panenské Břežany – U Obory, ideální pro rekonstrukci
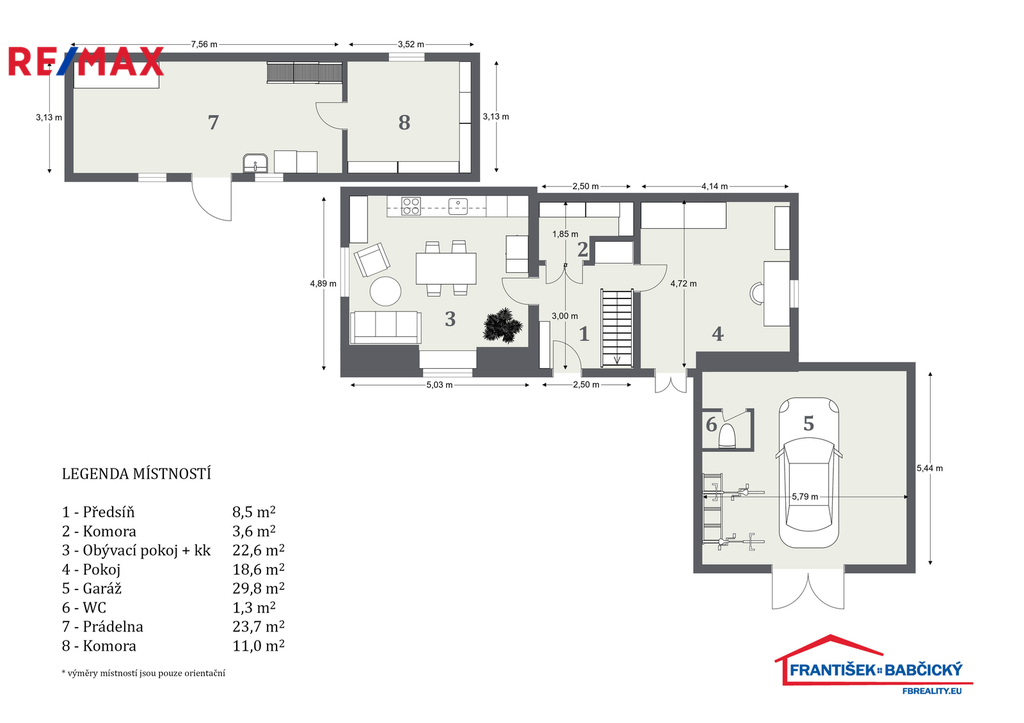
Rodinný dům 6+kk na svažitém pozemku 1 643 m², Panenské Břežany – U Obory 4, ideální pro rekonstrukci nebo novou výstavbu V Panenských Břežanech, v klidné ulici U Obory, nabízíme k prodeji rodinný dům o dispozici 6+kk, umístěný na prostorném svažitém pozemku o celkové výměře 1 643 m². Dům je v původním stavu a je vhodný buď k rozsáhlé rekonstrukci nebo k demolici a následné výstavbě nového rodinného domu přesně podle představ nového majitele. Tato nemovitost představuje výjimečnou příležitost pro ty, kteří hledají velký pozemek v oblíbené lokalitě s výbornou dostupností Prahy. Stávající dvoupodlažní dům má dispozici vycházející z půdorysů: v přízemí se nachází předsíň, komora, obývací pokoj s kuchyňským koutem, další pokoj, toaleta, garáž, prostorná prádelna a další úložné prostory. V patře je umístěna chodba, koupelna, ložnice, kuchyně a balkón s výhledem do zahrady. Celková plocha dle plánů činí 177 m², včetně garáže, balkónu i vedlejších hospodářských částí. Na pozemku se nachází také samostatná garáž a technické zázemí, které mohou sloužit jako dílna nebo sklad. Nemovitost je napojena na elektřinu, obecní vodovod, kanalizaci i internet. Plyn se nachází přímo na hranici pozemku a je připraven pro budoucí připojení. Svažité terénní uspořádání nabízí možnost atraktivního architektonického řešení, například výstavby víceúrovňového domu nebo terasovité zahrady. Panenské Břežany jsou žádanou lokalitou díky příjemnému prostředí, blízkosti přírody i hlavního města. V obci se nachází mateřská a základní škola, knihovna, Obecní úřad a výdejní místo pošty. Základní občanská vybavenost je doplněna službami v nedaleké Odoleně Vodě a Brandýse nad Labem. Obec je známá také svými historickými památkami, zejména kaplí sv. Anny a areálem místního zámku, které dodávají lokalitě jedinečný charakter. Dopravní dostupnost je výborná. Autobusová linka PID 373 navazuje přímo na pražskou stanici metra C Kobylisy, přičemž zastávky jsou v docházkové vzdálenosti od domu. Autem se snadno napojíte na hlavní tahy směrem na Prahu přes Zdiby. Lokalita tak spojuje klidné bydlení s výbornou dostupností města. Tato nabídka je ideální pro rodinu nebo investora, který hledá prostorný pozemek s potenciálem v atraktivní obci v blízkosti Prahy. Nemovitost je připravena k okamžitému předání. Prodávající si vyhrazuje právo vybrat kupujícího na základě jím zvolených kritérií.

