Prodej bytu, 3+1, 192 m²
Prodej bytu 3+1+ateliér (147 m2), kůlna/garáž (40m2), park. stání ve dvoře a zahrada 82 m2, Otvovice
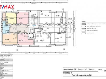
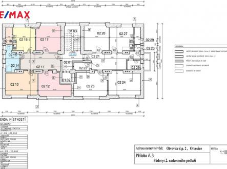
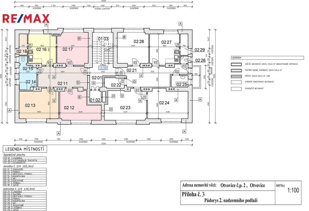
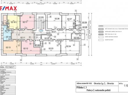
V exkluzivním zastoupení majitele nemovitosti Vám nabízíme prodej bytové jednotky v osobním vlastnictví, včetně užívání zahrady u domu, 1 parkovacího stání v uzavřeném dvoře, kůlny /garáž a užívání sklepní kóje v rodinném domě Otvovice, okr. Kladno. Otvovice nabízí klidné bydlení s výbornou dostupností do hl. města, bohatou infrastrukturou a možnostmi aktivního odpočinku v přírodě i sportovních areálech. V obci se nachází obecní úřad, MŠ, ZŠ, ordinace praktického lékaře, pošta, obchody se smíšeným zbožím, restaurace, obecní knihovna a kulturní sál, který nabízí společenský život. Otvovice mají velmi dobrou dopravní dostupnost do Prahy a okolí díky vlakovému spojení Masarykovo n.-Kralupy n/Vlt-Kladno (pravidelné intervaly) a bus lince č. 856 Kralupy-Tursko-Zákolany a lince č. 316 Tursko-Praha Bořislavka. Autem je Praha dostupná do 30 minut (cca 21 km). V obci naleznete také moderní sportovní areál s koupalištěm, multifunkčním a fotbalovým hřištěm. Areál nabízí možnost koupání a sportovních aktivit pro děti i dospělé. V okolí se nachází dětské i venkovní hřiště, tipy na výlety do přírody včetně blízkosti lesů, cyklostezky a atraktivní turistické trasy. Bytová jednotka v 2. nadzemním podlaží, o dispozici 3+1 (103,3 m2) Vám nabízí velmi prostornou vstupní chodbu s možností úložných prostor, dvě samostatné neprůchozí ložnice, velmi prostorný obývací pokoj, kuchyň s jídelnou a samostatnou komorou na potraviny (špíz)a velkou koupelnu s vanou a toaletou. V bytě jsou nová plastová okna + nové vstupní dveře. Byt prošel úpravou 2019/2020: sádrokartonové stropy v celém bytě, nové osvětlení, oprava omítek, nové plov. podlahy + olištování a kuchyňská linka včetně spotřebičů (sklokeramická varná deska, digestoř, elektrická trouba a mikrovlnná trouba) a nové interiérové dveře. Topení a ohřev vodu zajištěno novým plynovým kondenzačním kotlem. Kotel se nachází v koupelně bytu, s pravidelnou údržbou /servisní kontrolou. Byt je velmi světlý a slunný. Součástí prodeje bytové jednotky č. 2/4 je: 1) výlučné užívání ateliéru o výměře 43,5 m2 (ateliér č. 0311, soc. zařízení č. 0312 a komora č. 0313) umístěný v 3. nadzemním podlaží = ateliér se nachází přímo nad prodávaným bytem, možnost rekonstrukce prostor pro vlastní bytové či podnikatelské potřeby nebo následný pronájem 2) výlučné užívání kůlny č. 5 o výměře 40,4 m2 (možnost parkování dvou aut) 3) výlučné užívání parkovacího stání č. 5 o výměře 11 m2 4) výlučné užívání zahrady č. Z1 o výměře 82 m2 5) společné užívání komory č. P103 o výměře 10 m2 umístěné v 1. podzemním podlaží Aktuální měsíční náklady na bydlení: - záloha na služby 450,- Kč/ 1 osoba (70,- Kč elektřina spol. prostor, vodné 200,- Kč, jímka 180,- Kč), 900,- Kč/ 2 os., 1.350,- Kč/ 3 os., 1.800,- Kč/ 4 os. - záloha elektřina bytu dle vlastní spotřeby - záloha plyn (topení a ohřev vody) dle vlastní spotřeby, doporučená záloha pro rodinu cca ve výši 3.500,- Kč Pro více informací a sjednání termínu prohlídky neváhejte kontaktovat makléřku nemovitosti.


