Prodej bytu, 2+1, 54 m²
Prodej bytu 2+1, 54 m², Otrokovice, ul. Lidická
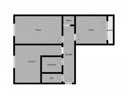
Nabízíme ke koupi bytovou jednotku 2+1 v osobním vlastnictví, v 1 NP panelového čtyřpodlažního domu, v klidné části města, na ulici Lidická v Otrokovicích. Byt je v původním, udržovaném stavu, ideální využití i jako investice s výhledem na budoucí modernizaci. Místnosti jsou neprůchozí. Z obývacího pokoje je přístup na balkon. Součástí předsíně je i prostor využíván jako šatna, nebo komora pro jiné využití.Plocha bytové jednotky činí 54m2. Byt se nachází v atraktivní a dostupné vzdálenosti od základní školy, školky, obchodního centra. Další výhodou je výborná dostupnost dopravního spojení a občanského vybavení. Pro více informací. nebo sjednání prohlídky mě prosím neváhejte kontaktovat. Zajistíme i Vaše financování koupě této nemovitosti. Těší se na prohlídku s Vámi makléřka Taťána Zádrapová


