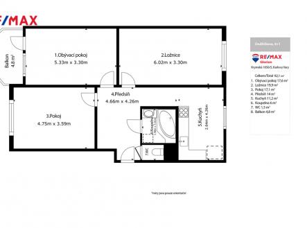
Prodej bytu, 3+1, 83 m²
Prodej bytu 3+1 s balkonem, garáží a sklepem – Otovice, Karlovy Vary
Hledáte prostorné a bezstarostné bydlení v klidné části Karlových Varů s vlastní garáží? Pak by vás mohl zaujmout tento velmi pěkný byt 3+1 s balkonem o celkové ploše 83 m², který se nachází v Otovicích u Panelárny. Byt je umístěn ve 2. nadzemním podlaží udržovaného bytového domu z roku 1999. Před přibližně 3 lety prošel kompletní rekonstrukcí, takže je ve výborném stavu a připraven k okamžitému nastěhování bez dalších investic. Velkou předností je vlastní garáž o velikosti cca 20 m², která se nachází přímo v budově a je vybavena elektrickým ovládáním vrat. K tomu navíc parkovací stání přímo vedle garáže, což je v dnešní době obrovský benefit. Dispozice bytu je velmi praktická – všechny pokoje jsou samostatné, což ocení jak rodina, tak i ti, kteří chtějí mít dostatek soukromí. Součástí bytu je také balkon, ideální pro ranní kávu nebo večerní relax. Dům je dlouhodobě udržovaný, v loňském roce proběhlo zateplení fasády, což má pozitivní vliv na energetickou úsporu. Vytápění i ohřev teplé vody jsou řešeny centrálně. Otovice jsou vyhledávanou a klidnou částí Karlových Varů s dobrou dostupností do centra města, okolní přírody i základní občanské vybavenosti. Lokalita je ideální pro ty, kteří chtějí bydlet v klidu, ale zároveň mít město na dosah.


