Prodej - dům/vila, 156 m²
Prodej rodinného domu Ostrov-Vykmanov u Karlových Var
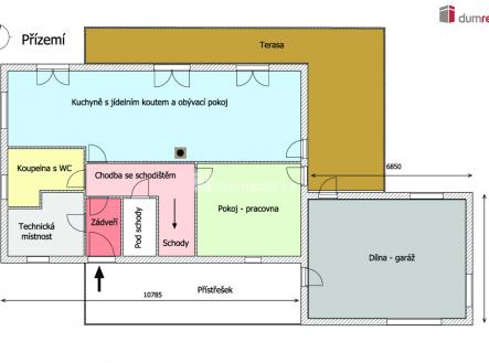
Naše společnost Vám zprostředkuje prodej dvoupodlažního rodinného domu (dřevostavby) v podkrušnohorském městě Ostrov, místní části Vykmanov, 15 km od Karlových Varů. Dům o velikosti 5+kk (zast. plocha cca 134 m², podlahová plocha domu cca 156 m², podlahová plocha dílny cca 42 m²) je postaven na rovinatém pozemku o výměře 1.746 m² a jeho orientace umožňuje sluneční svit od východu po západ. Hlavní stavba je spojena s dílnou, která má samostatné vstupy a vjezd a lze ji využít také jako garáž. V přízemí je vstup do domu se zádveřím, chodbou a schodištěm do patra, technická místnost, koupelna s WC, pokoj, kuchyňský kout s jídelnou a obývací pokoj s krbovými kamny. Z obývacího pokoje lze vyjít přímo na venkovní dřevěnou terasu, která je v západní části zastřešena. Hlavní vstup do domu je chráněn zastřešenou přístavbou. V 1. NP je chodba, samostatná koupelna, samostatné WC, komora a tři pokoje, z nichž dva jsou oddělené dřevěnými posuvnými dveřmi, takže se dají propojit v jeden velký. Veškerá okna v celém objektu jsou plastová s trojskly, v horním patře mají některá okna venkovní mechanické žaluzie. Součástí vybavení domu je technologické zázemí (tepelné čerpadlo, bojler) a kuchyňská linka se spotřebiči (indukční deska, el. trouba, vestavěná mikrovlnná trouba, myčka, digestoř). Vytápění domu a ohřev teplé vody je zajištěn tepelným čerpadlem, podlahové topení je v celém přízemí (včetně dílny) a všech koupelnách a WC. V obytných pokojích jsou radiátory. Druhým zdrojem tepla jsou krbová kamna v obývacím pokoji. Dodávka studené vody je z veřejného vodovodního řádu, kanalizace je napojena do domovní čistírny odpadních vod (DČOV). V současné době probíhají přípravy k realizaci napojení do obecního veřejného kanalizačního řádu a rekonstrukce příjezdové komunikace. Na zahradě je vlastní studna pro zalévání zahrady. Parkování je možné na pozemku nebo před vjezdem k domu. Stavba je nízkoenergetická a dle platné legislativy je zařazena do energetické třídy B. Tuto nemovitost lze hradit hypotečním úvěrem, který Vám rádi pomůžeme vyřídit. Ev. číslo: 650263.


