Pronájem - jiné, 102 m²
Pronájem ruční automyčky 102m2, Moravská Ostrava a Přívoz
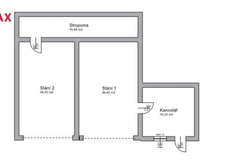
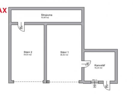
Nabízíme k pronájmu nově zřízenou ruční automyčku na strategickém místě v Ostravě. Prostor se skládá ze 2 kompletně vybavených mycích boxů, kanceláře, strojovny a zázemí, umístěných přímo v objektu Zborovská 7, s dalšími službami pro automobily (autoservis, pneuservis, atp.). Prostor je vhodný pro začínající podnikatele i zavedené firmy, které chtějí rozšířit své služby. Podstatnou výhodou je navazující zařízená kancelář a zázemí pro ruční čištění a čištění interiérů, případně další služby. Co automyčka nabízí: • Moderně vybavené 2 mycí boxy • Profesionální technologie a kvalitní zařízení, pravidelný servis dodavatele • Bezproblémový příjezd a dobrá viditelnost z komunikace • Možnost doplnění o detailing - ruční čištění interiérů či další služby • Parkovací místa pro zákazníky, doplněná o vysavače a kompresor • Stabilní klientela a sídla mnoha firem v okolí (Asental, Innogy, Radnice města Ostravy, Česká televize a další) Výhody: • Skvělá lokalita v rámci Ostravy • Možnost okamžitého zahájení provozu • Flexibilní podmínky pronájmu Měsíční úhrady: - Měsíční nájemné 30.000,- Kč - Amortizace technologie (v záruce) 20.000,- Kč - Zálohy na služby (elektřina a voda) 3.500,- Kč - Náklady na doplňování kapalin (šampony, vosk, změkčovadla atp.) cca 5.000,- Kč Pokud hledáte příležitost podnikat v prosperujícím oboru, tohle je ideální volba. Předpokládaný výnos z provozu 100.000-160.000,- Kč/měsíc. Kontaktujte nás pro prohlídku nebo více detailů.
RE/MAX Elite Reality 2


