Pronájem - skladovací prostor, 594 m²
Pronájem novostavby skladových, výrobních prostor 594 m², Ostrava - Zárubek
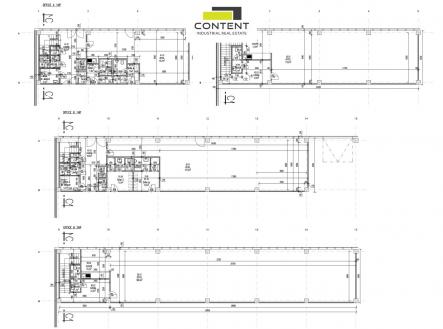
Pronájem skladu, výrobních prostor Ostrava, Slezská - Zárubek. V zastoupení majitele a bez provize nabízíme industriální prostory ve výstavbě na velice strategickém místě poblíže OC Nová Karolína administrativního komplexu ORGANICA. Budova bude dodána s nejmodernějšími technologiemi a trendy ze stavebnictví. Jednotky se ideálně hodí jako sídlo firmy se showroomem, prodejnou, servisem, skladem, nebo lehkou výrobou. Umístění areálu je dále ideální na city logistiku, distribuci v rámci centra Ostravy, atd. - jednotka o velikosti 594 m² ihned k dispozici - z toho 108 m² showroom + kanceláře v 1.NP a 2.NP - k dispozici samostatné jednotky od 594 m² - 4608 m² v rámci jedné budovy - výroba, sklad, servis, dílna, distribuce, kanceláře, výdejny - možnost klientských změn a úprav dle požadavků nájemníka - nosnost podlahy minimálně 5 t/m² - voda, plyn, elektřina, kanalizace - přímé vjezdy, nakládací rampy - kanceláře vytápěné tepelným čerpadlem - hala vytápěná plynovými saharami - certifikace budovy BREEAM VERY GOOD - FVE + bateriové úložiště pro udržitelný provoz budovy Cena bude stanovena dle konkrétních podmínek smlouvy. Pro více informací nás kontaktujte. V případě zájmu Vám rádi zajistíme prohlídku.


