Pronájem - kanceláře, 275 m²
Pronájem kancelářských prostor 275 m2
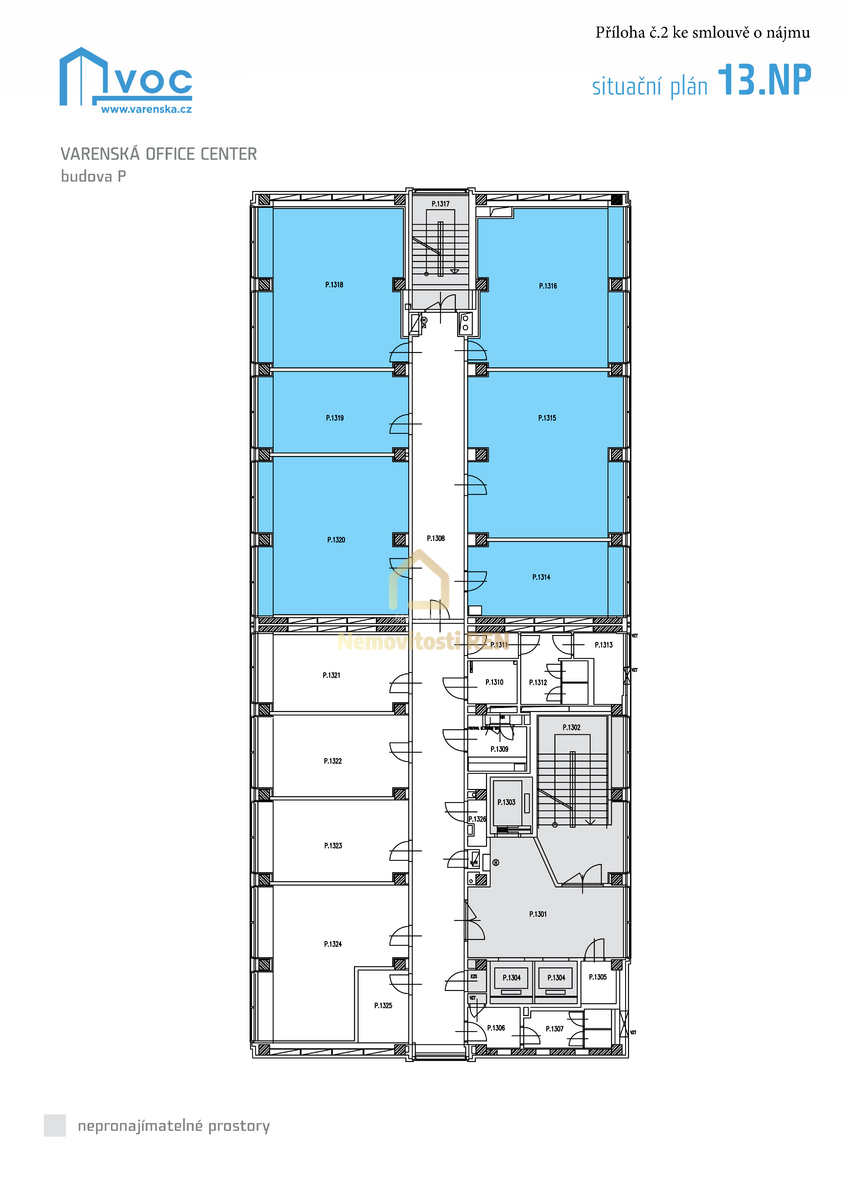
Moderní a atraktivní prostředí nabízí kancelářské prostory o celkové ploše 275 m², které se nacházejí ve 13. patře administrativní budovy. Jedná se o oddělený kancelářský celek, který tvoří 4 kanceláře o velikosti cca 40 m² a 2 kanceláře o velikosti cca 20 m², doplněné o společné prostory – chodbu a sociální zázemí. Preferován je pronájem celého prostoru jako jednoho celku. Přístup do objektu je zajištěn schodištěm i výtahy. Bezpečnost budovy zaručuje non-stop bezpečnostní služba, kontrolovaný vstup přes recepci s nepřetržitým provozem a elektronické zabezpečení celého objektu. Kanceláře jsou klimatizované, světlé a nabízejí krásný výhled na Ostravu. Jsou vybaveny hliníkovými žaluziemi a rozvody PC sítí a internetu. V jedné z místností je umístěna kuchyňská linka. V okolí je veškerá občanská vybavenost, včetně nákupního centra Futurum, restaurací i služeb. Výborná je rovněž dopravní dostupnost – v blízkosti se nachází zastávky MHD (tramvaj, autobus, trolejbus) i přímé napojení na hlavní silniční tahy a dálnici. Cena nájmu: 265,83 Kč / m² / měsíc/ bez DPH Služby a energie: 180 Kč / m² / měsíc / bez DPH Pokud Vás tato nabídka zaujala, neváhejte mě kontaktovat. Těším se na Vás na společné prohlídce!


