Pronájem - kanceláře, 58 m²
Pronájem kanc. prostoru, 58 m², Ostrava, ul. Slévárenská
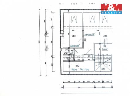
Ráda bych Vám zprostředkovala pronájem kancelářských prostorů nacházejících se na ulici Slévárenská. Jedná se o dvě kanceláře, kuchyňku, WC, umývárnu, půdní prostor. U objektu je možnost parkování pro více aut, jsou zde i dvě nabíjecí stanice pro elektromobily. Výborná dopravní dostupnost, zabezpečovací systém, kamerový dohled. Prostory jsou vhodné pro firmu hledající klidné a dostupné místo k podnikání. Pro větší firmu je zde možnost k pronajmutí mnohem větších prostorů ve stejném objektu, pro každou jednotku je zvlášť elektroměr, v podkroví je klimatizace. Pokud Vás nabídka zaujala, stačí zavolat a domluvit si prohlídku.


