Prodej - dům/vila, 350 m²
Prodej rodinného domu, 350 m², Ostrava, ul. Hranečník
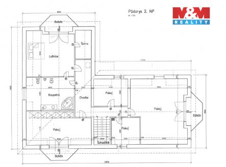
Můj dům – můj hrad. Nabízíme k prodeji stylovou residenci 6+1 s komfortní dvojgaráží a zahradou o celkové výměře 2 588 m2 nacházející se na okraji Ostravy, ve vilové čtvrti s přátelským sousedstvím, která je dostupná do centra během pár minut. Tato kvalitní nemovitost zajišťuje jak dostatek soukromí, tak pohodlí pro všechny členy domácnosti. Každá z ložnic má své relaxační místo v podobě terasy či zastřešeného balkonu. Avšak s rostoucím věkem dětí, které postupně vylétávaly z hnízda se stal dům pro současné majitele příliš velký a jeho potenciál již není stoprocentně využívaný, což je obrovská škoda. Bydlení je rozhodně možné propojit se zázemím pro podnikání, je zde pohodlný příjezd i parkování. Nemluvě o rozsáhlém pozemku, který už také vyhlíží další kreativní záměr. PENB se aktuálně zpracovává. Nemovitost se nachází v poslední linii a její okolí je protkané cyklostezkami, jinými slovy na klidném a tichém místě. Komodita dneška.


