Prodej - dům/vila, 273 m²
Prodej rodinného domu, 273 m², Ostrava, ul. U Lípy
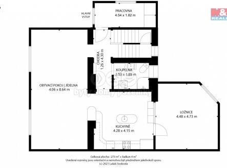
Nabízíme k prodeji velmi okázalou nemovitost, jejíž zámecký styl Vás rozhodně ohromí. Bydlení vypovídá o vybraném vkusu i prosperitě majitele a je nesmírná škoda neponechat domu jeho duši i nadále. Toto honosné vícegenerační sídlo, rozprostírající se na třech podlažích dosud sloužilo jako rodinný dům. Má dvě samostatné bytové jednotky, dostatek ložnic, koupelen i soukromí. Součástí komplexu je wellness s celoročním vyhřívaným bazénem (solární panely), saunou, společenskou místností a dobře vybaveným barem. Na famózní zahradě se krom dostatku prostoru pro venkovní aktivity nachází také masivní krb, altánek, zastřešené technické zázemí, které lze využít i jinak, stylová garáž a mnoho další parády. Celý pozemek je oplocen. Na přilehlém dvorku je kvalitní a udržovanou zámková dlažba, kde také najdete kryté stání. Možná nyní nastává čas změnit charakter rodinného domu a využít příležitost k investici, která následně povede ke krátkodobému pronájmu s výnosem zajímavých částek.


