Prodej - dům/vila, 180 m²
Prodej rodinného domu, 180 m², Ostrava, ul. Na Hlásce
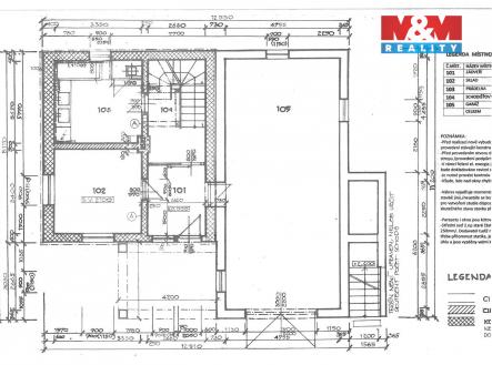
Exkluzivně nabízíme k prodeji rodinný dům o celkové podlahové ploše 180 m2, v klidném prostředí plném zeleně v ulici Na Hlásce, ve Slezské Ostravě. Jedná se o hrubou stavbu rekonstruovaného původního domu s číslem popisným a k němu nově postavenou druhou část, přičemž obě poloviny o celkové zastavěné ploše 118 m2 jsou sjednoceny železobetonovým věncem a novými krovy se střechou. Na pozemku o celkové velikosti 837m2, se nachází i samostatná stavba garáže s dílnou, zapsaná v katastru, o podlahové ploše téměř 40 m2. Výhodou je výborná dostupnost do centra Ostravy.


