Prodej - komerční objekt, jiný, 3 400 m²
Prodej komerční nemovitosti ul. Lihovarská, Ostrava - Radvanice
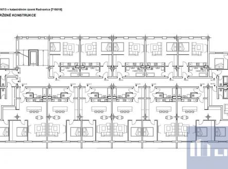
Nabízíme k prodeji jedinečnou komerční nemovitost s vypracovanou architektonickou studií přestavby objektu na moderní rezidenční bydlení. Tento projekt představuje výjimečnou investiční příležitost v atraktivní lokalitě Ostravy pouze 10 minut od centra města. Projekt počítá s vybudováním 30 bytových jednotek ve dvou nadzemních podlažích a s možností využití suterénu pro technické zázemí či skladovací prostory. Budova s robustní železobetonovou konstrukcí je uvnitř vybourána a nachystána na zahájení rekonstrukce. Základní informace: - Zastavěná plocha budovy: 1 356 m - Celková výměra pozemku: 7 251 m - Konstrukce: železobetonový skelet robustní a variabilní pro budoucí využití - Stav: interiér je kompletně vybourán a připraven pro rekonstrukci dle vypracované studie Projektová studie: - Suterén skladové prostory, technické zázemí, případně jiné komerční využití - 1. NP 15 bytových jednotek - 2. NP 15 bytových jednotek - Možnost doplnit o kanceláře či menší provozovny dle potřeb investora Lokalita a občanská vybavenost: - Nemovitost se nachází v klidnější části města, zároveň pouze 10 minut od centra Ostravy - Výborná dopravní dostupnost přímo u objektu se nachází autobusová zastávka - V těsné blízkosti supermarket Penny Market - KouPark sportovně-rekreační areál pro děti i dospělé ve vzdálenosti 800 m - Klidné prostředí pro rezidenční bydlení, ale zároveň blízkost centra města pro komerční aktivity Proč investovat právě zde: - Železobetonový skelet umožňuje variabilní řešení dispozic a zajišťuje dlouhou životnost stavby - Hotová studie rekonstrukce ušetří investorovi čas i náklady na přípravu projektu - Lukrativní lokalita s rostoucí poptávkou po bydlení i komerčních prostorech se snadným parkováním - Velký rozsah pozemku poskytuje prostor pro další využití nebo rozšíření projektu - Kombinace skladových, kancelářských a rezidenčních prostor zaručuje široké možnosti budoucího pronájmu a stabilní výnos Tento projekt je vhodný pro investory, kteří hledají nemovitost s jasně definovaným potenciálem a atraktivní návratností.


