Prodej - hotel, 1 248 m²
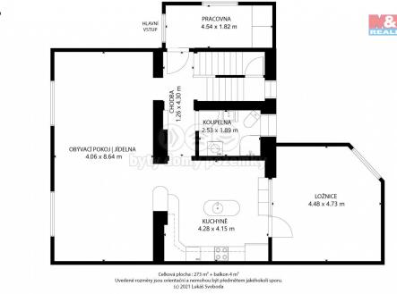
Prodej hotelu, penzionu, 273 m², Ostrava, ul. U Lípy
Nabízíme k prodeji velmi unikátní nemovitost, jejíž styl je naprosto autentický a nekopírovatelný. Honosné vícegenerační sídlo, rozprostírající se na třech podlažích dosud sloužilo jako rodinný dům. Možná nastal čas na změnu a využít tuto prodejní příležitost k investici, která následně povede ke krátkodobému pronájmu s výnosem zajímavých částek. Součástí komplexu je wellness s celoročním vyhřívaným bazénem (solární panely), saunou, společenskou místností a dobře vybaveným barem. Na famózní zahradě se krom dostatku soukromí i prostoru pro venkovní aktivity nachází také masivní krb, altánek, zastřešené technické zázemí, které lze využít i jinak, stylová garáž, zastřešené stání a mnoho další parády. Celý pozemek je oplocen. Na přilehlém dvorku je kvalitní a udržovanou zámková dlažba, kde také najdete kryté stání.


