Prodej bytu, 3+kk, 44 m²
Ostrava Dubina DB 3kk po rekonstrukci
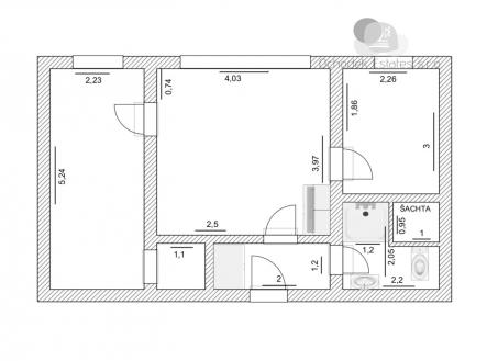
Malý byt nafouknutý do obřích rozměrů. 3+kk na výměře 44m2 kde je efektivně využitý každý centimetr pro pohodlné bydlení i větší rodiny. Nabízený družstevní zrekonstruovaný byt je v 1.patře zrevitalizovaného bytového domu v klidné a slušné části Dubiny, kde si jej během chvilky zamilujete pro jeho přehledné uspořádání, koupelnu přístupnou ihned z chodby a obrovskou skříň hned za vstupními dveřmi. Ale vezměme to popořadě. Po vstupu do bytu se octnete v 3,6m2 velké chodbě, jejíž součástí je nalevo umístěná vestavěná skříň s atypickou hloubkou 97cm, kam dokážete uložit opravdu hooodně věcí. Napravo od vstupních dveří je se svými 3,4m2 koupelna s prostorným sprchovým koutem, toaletou a umyvadlem. Dále pak vstoupíte do prostředního velkého pokoje s výměrou 16m2, který je rozdělen na část s rohovou pohovkou, kuchyňským koutem a jídelním stolem. Kuchyňská linka je menších rozměrů ale v galerii pak najdete zpracovaný návrh pro zvětšení na kuchyňskou linku přes celou stěnu, kdy tímto dosáhnete plnohodnotné kuchyně s dostatečným množstvím skladovacích prostor a také větší pracovní a přípravnou plochou jak pro masterchefa. Vpravo i vlevo od tohoto pokoje se nacházejí dva menší pokojíky o výměře 6,85m2 vpravo a 11,7m2 nalevo. Ten větší je navíc vybaven výklenkem 1,3m2 sloužícím jako šatna. Oba tyto v současném uspořádání slouží jako ložnice. Jako další úložný prostor vás nadchne i pořádný sklep o výměře 1,9m2. Ať už byt využijete pro občasné přespání, nebo pro dlouhodobé bydlení, jistě oceníte družstvo, které spravuje výlučně tento jediný panelový dům a vzorně se o něj stará. Dále také slušné a klidné sousedy, parkování přímo před domem, nebo třeba dětská hřiště v okolí, na nichž se vyřádí děti od nejmenších až po puberťáky - je tu i menší skatepark. V docházkové vzdálenosti je MŠ i ZŠ, potraviny, restaurace, hospůdka, lékárna, tramvajové i autobusové zastávky a další. Financování družstevního bytu bankou vám rádi zajistíme. Pokud vás tento byt zaujal jako mě, ozvěte se pro domluvení prohlídky. Rád vás tu provedu. Pozn.: Energetický štítek v nejbližší době doplníme, zatím musíme ze zákonných důvodů uvést třídu G. Uvedená kupní cena nezahrnuje zprostředkovatelský poplatek 150.000Kč.


